Condo For Sale in Mahwah, NJ

MLS# : 26012487

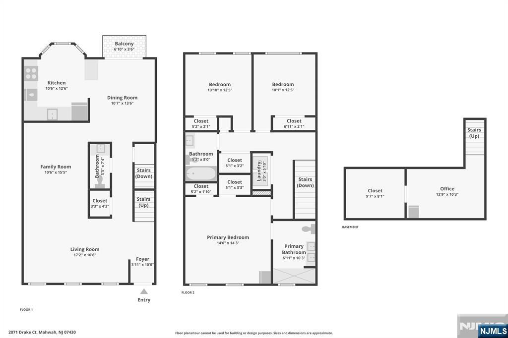
Street : 2071 Drake Court
Price : $675,000
Town : Mahwah, NJ 07430
Annual Taxes : $7,559
Monthly Maintenance : $394

PROPERTY DETAILS

Bedrooms : 3
Full Baths : 2
Half Baths : 1
Garage : None
Building Type : Attached
Year Built : 1990's, 2020's, Renovated
Building/Complex : Franklin Heights
Pets? : Cats Allowed, Dogs Allowed, Pets Ok
Laundry : In Unit
View/Exp : East

PROPERTY DESCRIPTION

| This 3BR/2.5BA townhome stands out for renovations that feel modern, cohesive, and genuinely thoughtful. Completely renovated in 2023, the kitchen features modern shaker cabinetry, quartz countertops, stainless steel appliances, & a bay window breakfast nook. Both full baths were also beautifully renovated that year with upscale Porcelanosa finishes. Built-ins, updated hardware, & other carefully chosen details add warmth, style, & functionality. | The main level is especially inviting, with connected spaces that feel open yet distinct & East/West exposures that bring natural light throughout the day. The living room flows into a flexible adjoining area suited for a family room or formal dining, while a separate space beside the kitchen adds flexibility for casual dining, entertaining, or everyday living. Upstairs, laundry is conveniently located on the BR level, & the spacious primary suite includes both a walk-in closet & a 2nd closet. | A bonus basement/office adds flexible space, while the private rear deck extends living outdoors. A 2021 HVAC system adds peace of mind, while very low HOA fees of just $394/month & taxes of approx. $7.5K help keep carrying costs especially attractive. Sought-after Franklin Heights is known for its real sense of community, along with amenities including a pool, tennis courts, playground, & clubhouse, all in Mahwah with its top-rated schools, low taxes, shopping, dining, & transportation. | TEXT Michael @2012849009 for a private tour.

Amenities

  • Common Area
  • Pool Outdoor
  • Tennis Ct
Appliances Included :

Dishwasher, Microwave, Ov/Rg/Gas, Refrigerator, Washer/Dryer

Life Style :

Close/Parks, Close/School, Close/Shopg, Close/Trans, Close/Wrshp

This listing is a courtesy of Howard Hanna Rand Realty, Old Tappan
201-666-0007 office, listing agent Michael Joo

About Mahwah, NJ Real Estate Market

The largest municipality in Bergen County in New Jersey state in terms of area, Mahwah is located in the northernmost part of the county. The municipality of Mahwah is spread over an area of 25.88 square miles and has around 27,000 people living in it.

The naming of Mahwah sources inspiration from the Lenape language word ‘mawewi’, which means ‘a place where paths meet’. The central area of Mahwah originally was known as Hohokus Township till 1849. In 1944, an act passed by New Jersey Legislature joined the parts of Orvil Township, Upper Saddle River, Allendale and Ramsey to form the municipality of Mahwah.

Since it is the biggest municipality in Bergen County in terms of area, Mahwah is one of the best places to live in, with both small-sized homes and big-sized homes available for sale in this town of New Jersey. There are several state and county parks in Mahwah, such as Darlington County Park, Campgaw Mountain Reservation and Ramapo Valley County Reservation. Out of these, the Campgaw Mountain Reservation hosts a few campgrounds and ski slopes. The Ramapo rivers flow through the western part of the municipality.

There are several places from Bergen County which surround the municipality of Mahwah, such as Oakland, Allendale, Franklin Lakes, Wyckoff and Upper Saddle River. Apart from these, Mahwah also shares its borders with other places like Ringwood from Passaic County and Hillburn, Airmont, Suffern and Ramapo from Rockland County.
Population:  25,890
Total Housing Units:  9,868
Single Family Homes:  9,241
General Tax Rate (2025):  2.127%
Effective Tax Rate (2025):  1.563%
Compare To Other Towns

Mahwah Market Indicators

PRICE INDEX

Average Price* (12mo):  $993,934
Homes Sold* (12mo):  105
PRICE INDEX
SINGLE FAMILY HOME SALES

Mahwah, NJ
12 Month Moving Average


1 YR 2 YR 3 YR 5 YR 7 YR MAX
 

Download Full Home Sales Report

REAL ESTATE TAXES

General Tax Rate (2025):  2.127%
Effective Tax Rate (2025):  1.563%
GENRAL TAX RATE - Mahwah, NJ



MADISON ADAMSTM

office: 201-760-1100
84 E Ridgewood Ave, Suite 201
Ridgewood, NJ 07450
201-760-1100 (office)
201-760-1102 (fax)

Contact Info

FOR APPOINTMENTS CONTACT


Sales Associate
551-358-4252 (cell)

Madisom Adams Sales Associate Henry A. Washington


Sales Associate
201-724-6913 (cell)

Madisom Adams Sales Associate Carmela Maggio


Managing Partner
Broker Associate
646-279-8233 (cell)

Madisom Adams Broker Associate Helena Lobo-Zagorski


Real estate inventory
Mahwah
Homes : $130,000 - 22,500,000 12
Condos : $275,000 - 799,999 16
Co-ops : -
Twnhs : $525,000 - 837,500 7
2-4 Fam : -
5+ Fam : -
Land : $399,000 - 1,500,000 2
Rentals : $2,150 - 7,100 21
Mixd Use : -
Com S : -
Com L : -
Biz : $90,000 - 159,000 2


Similar Listings in Mahwah

The data relating to the real estate for sale on this web site comes in part from the Internet Data Exchange Program of the NJMLS. Real estate listings held by brokerage firms other than Madison Adams are marked with the Internet Data Exchange logo and information about them includes the name of the listing brokers. Some properties listed with the participating brokers do not appear on this website at the request of the seller. Listings of brokers that do not participate in Internet Data Exchange do not appear on this website.
NJMLS is the owner of the copyrights of the listing content displayed for IDX. The NJMLS Internet Data Exchange Logo is a service mark owned by the NJMLS, Inc. All information deemed reliable but not guaranteed. Last date updated: 04/15/2026 00:05 AM Source: New Jersey Multiple Listing Service, Inc. “©2026 New Jersey Multiple Listing Service, Inc. All rights reserved.”


General Tax Rate is used to determine the amount of real estate tax levied upon a particular property. This rate is used to compute the tax bill.

Effective Tax Rate is used to compare of one district to another district based on the assumption that all districts are at 100% valuation. This rate has been computed by the State of New Jersey Department of the Treasury using County Equalization Average Ratios. This rate is NOT to be used to compute the tax bill.

Data Source: US Census 2010, NJ MLS, State of New Jersey Department of the Treasury

(A) Start Address :
(B) End Address : Get Directions

Need More Info

First Name:
Last Name:
E-mail:
Tel:--
Message:
Join Madison Adams
Market Reports



Contact Us

Please read the Consumer Information Statement (CIS)


  

Madison AdamsTM

84 E Ridgewood Ave, Suite 201
Ridgewood, NJ 07450
201 760-1100 (office)
201 760-1102 (fax)
office@madisonadams.com