2-4 Family Home For Sale in Lyndhurst, NJ
 

MLS# : 26006117

Street : 179 Fern Avenue
Price : $739,000
Town : Lyndhurst, NJ 07071
Annual Taxes : $11,125

PROPERTY DETAILS

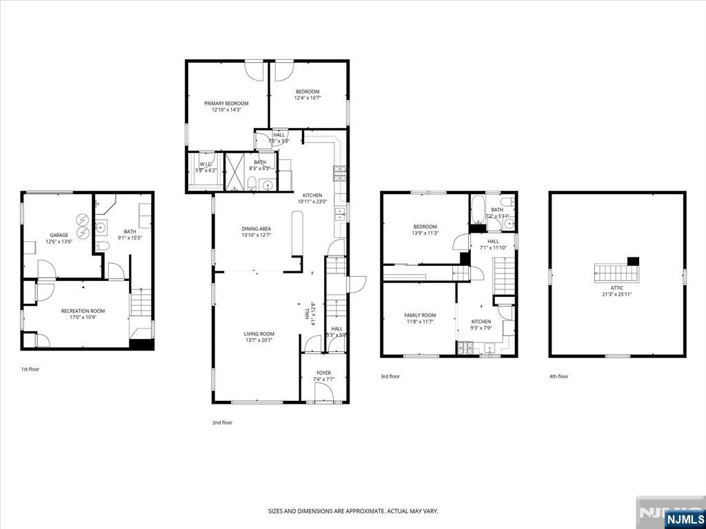
# of Rooms : 8
Bedrooms : 3
Full Baths : 3
Half Baths : 0
Year Built :
Lot Size :
Style :
Heat/Cool :

PROPERTY DESCRIPTION

Welcome to this well-maintained two-family home in the desirable community of Lyndhurst — an excellent opportunity for both investors and owner-occupants alike. The first-floor unit features a welcoming entry foyer, spacious living room, formal dining room, kitchen, two generously sized bedrooms, and a full bath. The finished basement adds valuable living space and includes a second full bathroom, offering flexibility for recreation, storage, or extended living needs. The second-floor unit offers a comfortable one-bedroom layout with a bright living room, eat-in kitchen, and access to an unfinished walk-up attic, presenting additional storage or future expansion potential. Additional highlights include a deep driveway and detached garage, providing ample off-street parking. Ideally located near public transportation with convenient access to the train, this property combines comfort, functionality, and commuter convenience. Don’t miss this exceptional opportunity in a prime location.

Amenities

This listing is a courtesy of Keller Williams Park Views
201-939-0050 office, listing agent Daniel Simone

About Lyndhurst, NJ Real Estate Market

The town of Lyndhurst is located only twenty minutes away from New York City. Lyndhurst commuters enjoy an easy ride by train to New York City. Lyndhurst has easy access to major highways and it is close to Newark, JFK, and Teterboro airports.

The town offers fine dining, fitness centers, parks, high-end salons, and many more attractions. For people that are interested in nature, Lyndhurst is also home to birding and wild life trails complete with natural habitats of all animals.
Population:  20,554
Total Housing Units:  8,787
Single Family Homes:  5,117
General Tax Rate (2023):  2.032%
Effective Tax Rate (2023):  2.006%
Compare To Other Towns

Lyndhurst Market Indicators

PRICE INDEX

Average Price* (12mo):  $631,518
Homes Sold* (12mo):  75
PRICE INDEX
SINGLE FAMILY HOME SALES

Lyndhurst, NJ
12 Month Moving Average


1 YR 2 YR 3 YR 5 YR 7 YR MAX
 

Download Full Home Sales Report

REAL ESTATE TAXES

General Tax Rate (2023):  2.032%
Effective Tax Rate (2023):  2.006%
GENRAL TAX RATE - Lyndhurst, NJ



MADISON ADAMSTM

office: 201-760-1100
84 E Ridgewood Ave, Suite 201
Ridgewood, NJ 07450
201-760-1100 (office)
201-760-1102 (fax)

Contact Info

FOR APPOINTMENTS CONTACT


Sales Associate
917-863-6560 (cell)

Madisom Adams Sales Associate Cindy Chiashin Shih


Sales Associate
551-358-4252 (cell)

Madisom Adams Sales Associate Henry A. Washington


Sales Associate
201-724-6913 (cell)

Madisom Adams Sales Associate Carmela Maggio


Real estate inventory
Lyndhurst
Homes : $649,000 - 799,000 2
Condos : -
Co-ops : -
Twnhs : -
2-4 Fam : $739,000 - 1,499,000 6
5+ Fam : -
Land : -
Rentals : $1,600 - 4,000 45
Mixd Use : $999,900 - 1,800,000 2
Com S : -
Com L : -
Biz : -


Similar Listings in Lyndhurst

The data relating to the real estate for sale on this web site comes in part from the Internet Data Exchange Program of the NJMLS. Real estate listings held by brokerage firms other than Madison Adams are marked with the Internet Data Exchange logo and information about them includes the name of the listing brokers. Some properties listed with the participating brokers do not appear on this website at the request of the seller. Listings of brokers that do not participate in Internet Data Exchange do not appear on this website.
NJMLS is the owner of the copyrights of the listing content displayed for IDX. The NJMLS Internet Data Exchange Logo is a service mark owned by the NJMLS, Inc. All information deemed reliable but not guaranteed. Last date updated: 03/04/2026 00:05 AM Source: New Jersey Multiple Listing Service, Inc. “©2026 New Jersey Multiple Listing Service, Inc. All rights reserved.”


General Tax Rate is used to determine the amount of real estate tax levied upon a particular property. This rate is used to compute the tax bill.

Effective Tax Rate is used to compare of one district to another district based on the assumption that all districts are at 100% valuation. This rate has been computed by the State of New Jersey Department of the Treasury using County Equalization Average Ratios. This rate is NOT to be used to compute the tax bill.

Data Source: US Census 2010, NJ MLS, State of New Jersey Department of the Treasury

(A) Start Address :
(B) End Address : Get Directions

Need More Info

First Name:
Last Name:
E-mail:
Tel:--
Message:
Join Madison Adams
Market Reports



Contact Us

Please read the Consumer Information Statement (CIS)


  

Madison AdamsTM

84 E Ridgewood Ave, Suite 201
Ridgewood, NJ 07450
201 760-1100 (office)
201 760-1102 (fax)
office@madisonadams.com