Commercial space For Lease in Hoboken, NJ
 

MLS# : 250024844

Street : 1018 WASHINGTON ST
Price : $1,100
Town : Hoboken, NJ 07030
General Tax Rate (2023) : 1.628%

PROPERTY DETAILS

PROPERTY DESCRIPTION

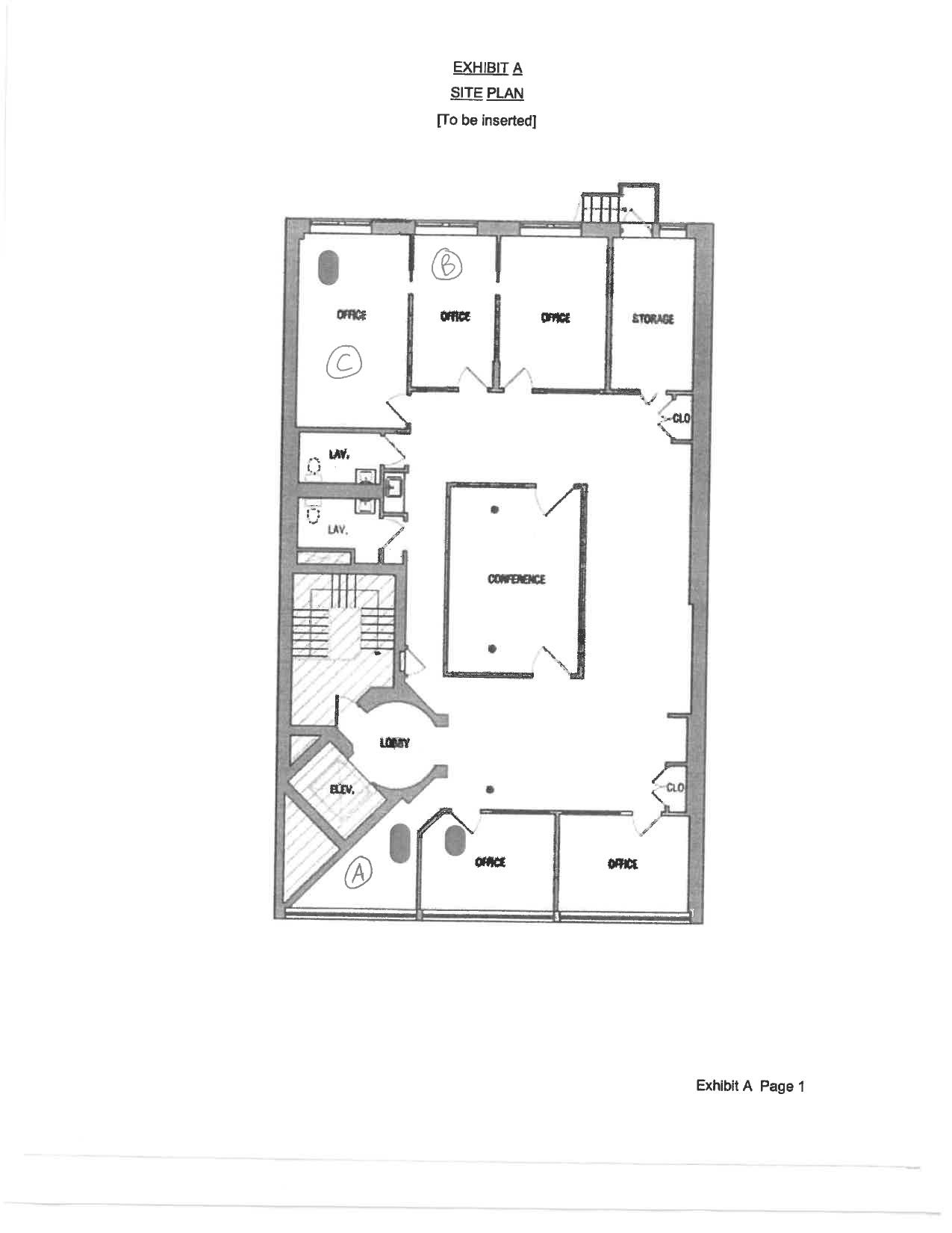
Class A Office space available on 10th and Washington! Great location!! 3 spaces available, all different sizes, (See pictured floor plan). Space A is $500 per month Space B is $1100 per month Space C is $1400 per month Heat and Hot water included. Access to large centrally located conference room. His/her bathrooms and kitchen area with microwave.

Amenities

This listing is a courtesy of REALTY ONE GROUP HUDSON LLC
201-656-5800 office, listing agent RICHARD GAETA

About Hoboken, NJ Real Estate Market

With a population of over 60,000 people, Hoboken is a part of the New York Metropolitan area, which spans over 2 square miles and is a city in Hudson County in New Jersey. Despite its spread in a very small area, the large population of Hoboken makes it the third most densely populated city in the United States. Hoboken is located on the west bank of the river of Hudson and is consistently considered one of the best places to live in Hudson County.

Originally settled as a part of the Pavonia colony in New Netherland in the 17th century, Hoboken is now a fully developed city, the foundation stone of which was laid by Colonel John Stevens in the early 19th century. At that time, Hoboken existed in parts of Bergen Township and North Bergen Township and emerged as an independent city in 1855.

During most of the duration of the 20th century, Hoboken remained an integral part of the Port of New York and New Jersey and was a base for several industries. In the current day and age, Hoboken has become a fully-developed residential area with the best examples of Hudson County real estate with large-sized single-family houses and residential skyscrapers and condominiums.
Population:  54,142
Total Housing Units:  27,809
Single Family Homes:  2,355
Apartments:  25,454
General Tax Rate (2023):  1.628%
Effective Tax Rate (2023):  1.032%
Compare To Other Towns

Hoboken Market Indicators

PRICE INDEX

Average Price* (12mo):  $2,324,065
Homes Sold* (12mo):  22
PRICE INDEX
SINGLE FAMILY HOME SALES

Hoboken, NJ
12 Month Moving Average


1 YR 2 YR 3 YR 5 YR 7 YR MAX
 

Download Full Home Sales Report

PRICE INDEX

Average Price* (12mo):  $905,744
Apatments Sold* (12mo):  520
PRICE INDEX
APARTMENT SALES

Hoboken, NJ
12 Month Moving Average


1 YR 2 YR 3 YR 5 YR 7 YR MAX

 

Download Full Apartment Sales Report

REAL ESTATE TAXES

General Tax Rate (2023):  1.628%
Effective Tax Rate (2023):  1.032%
GENRAL TAX RATE - Hoboken, NJ



MADISON ADAMSTM

office: 201-760-1100
84 E Ridgewood Ave, Suite 201
Ridgewood, NJ 07450
201-760-1100 (office)
201-760-1102 (fax)

Contact Info

FOR APPOINTMENTS CONTACT


Licensed as Marek Zagorski
Broker
201-478-3185 (cell)

Madisom Adams Broker Marek Zagorski


Sales Associate
914-261-6031 (cell)

Madisom Adams Sales Associate Georgine Addeo


Managing Partner
Broker Associate
646-279-8233 (cell)

Madisom Adams Broker Associate Helena Lobo-Zagorski


Real estate inventory
Hoboken
Homes : $3,250,000 - 3,250,000 2
Condos : $299,000 - 6,499,999 69
Co-ops : -
Twnhs : -
2-4 Fam : $3,750,000 - 6,999,000 2
5+ Fam : -
Land : $1,350,000 - 1,350,000 1
Rentals : $3,200 - 4,800 5
Mixd Use : -
Com S : -
Com L : -
Biz : $250,000 - 499,000 5


Similar Listings in Hoboken

The data relating to the real estate for sale on this web site comes in part from the Internet Data Exchange Program of the NJMLS. Real estate listings held by brokerage firms other than Madison Adams are marked with the Internet Data Exchange logo and information about them includes the name of the listing brokers. Some properties listed with the participating brokers do not appear on this website at the request of the seller. Listings of brokers that do not participate in Internet Data Exchange do not appear on this website.
NJMLS is the owner of the copyrights of the listing content displayed for IDX. The NJMLS Internet Data Exchange Logo is a service mark owned by the NJMLS, Inc. All information deemed reliable but not guaranteed. Last date updated: 12/11/2025 00:05 AM Source: New Jersey Multiple Listing Service, Inc. “©2025 New Jersey Multiple Listing Service, Inc. All rights reserved.”


General Tax Rate is used to determine the amount of real estate tax levied upon a particular property. This rate is used to compute the tax bill.

Effective Tax Rate is used to compare of one district to another district based on the assumption that all districts are at 100% valuation. This rate has been computed by the State of New Jersey Department of the Treasury using County Equalization Average Ratios. This rate is NOT to be used to compute the tax bill.

Data Source: US Census 2010, NJ MLS, State of New Jersey Department of the Treasury

(A) Start Address :
(B) End Address : Get Directions

Need More Info

First Name:
Last Name:
E-mail:
Tel:--
Message:
Join Madison Adams
Market Reports



Contact Us

Please read the Consumer Information Statement (CIS)


  

Madison AdamsTM

84 E Ridgewood Ave, Suite 201
Ridgewood, NJ 07450
201 760-1100 (office)
201 760-1102 (fax)
office@madisonadams.com