Condo For Sale in Jersey City, NJ

MLS# : 250023295

Street : 1 CONGRESS ST C-4
Price : $415,000
Town : Jersey City, NJ 07307
Annual Taxes : $7,405
Monthly Maintenance : $360

PROPERTY DETAILS

Bedrooms : 1
Full Baths :
Half Baths :
Garage :
Building Type :
Building/Complex : Kimberly Arms
Laundry :
Misc : Near Train,Near Shopping,Near Bus,Near Parks,Near Schools,Near Path

PROPERTY DESCRIPTION

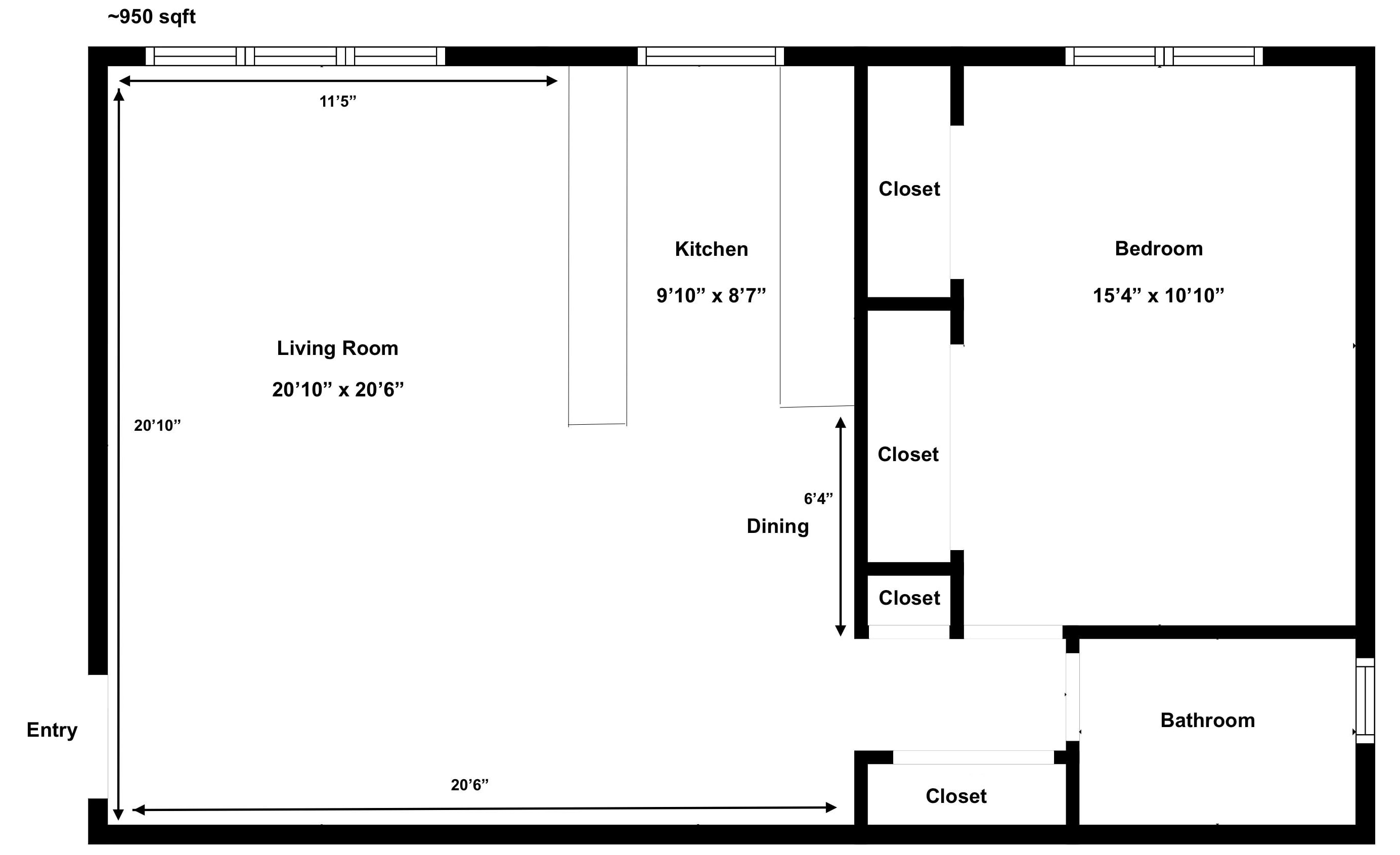
Beautifully renovated 1 Bedroom just steps from the 9th St light rail (via free elevator) & Hoboken! South-facing top-floor unit offers nearly 1,000 square feet of stylish, modern living—just 1.5 flights up in a well maintained boutique building. The sleek kitchen features stainless steel appliances, quartz countertops, and a custom backsplash, and opens into a spacious living and dining area—ideal for relaxing or working from home. The oversized bedroom comfortably fits a king-sized bed and includes generous closet space. The chic, modern bathroom is outfitted with walk-in shower. Additional highlights include overhead lighting, gleaming hardwood floors throughout, and the convenience of in-building laundry. Enjoy a virtual doorman system (ButterflyMX) and the unbeatable location at the corner of Ogden Ave & Congress St—just moments away from the Hoboken elevator, 9th St Light Rail, and NYC bus stop for easy commuting. Explore everything the neighborhood has to offer, including the Riverview Farmers Market, local eateries, coffee shops, and more! Heat, hot water and gas are included in the HOA. On-site parking avail for $40/mo additional HOA fee. Perfect for first-time homebuyers or investors alike—don’t miss this incredible opportunity!

Amenities

  • Intercom
  • Hardwood Floor
Appliances Included :

Dishwasher, Microwave, Refrigerator, Oven/Range Gas

This listing is a courtesy of NEW AND MODERN GROUP LLC
201-256-1422 office, listing agent GINA TELESCO

About Jersey City, NJ Real Estate Market

With an area of 21.13 square miles and a population of more than 290,000, Jersey City is one of the largest cities in the USA and the second-most populous city in New Jersey after Newark. A part of Hudson County from New Jersey and the New York metropolitan area, Jersey City is present on the west of Hackensack River, on a peninsula known as Bergen Neck.

Jersey City currently serves as a prime hub for distribution and transportation terminus for the Port of New York and New Jersey. Ever since the redevelopment of the Jersey City Waterfront happened, Jersey City became a major hub for banking and finance in the United States of America. All these developments in these years also resulted in the development of Hudson County real estate in the city.

Consisting of most of the parts of Ellis Island, Jersey City also surrounds Liberty City through its waters in the Upper New York Bay. Thanks to its proximity and easy connectivity to Manhattan, Jersey City is also considered the sixth borough of New York City. Jersey City has some of the earliest European settlements in North America, which played a crucial role in the development of various sections of the city.
Population:  267,345
Total Housing Units:  104,018
Single Family Homes:  36,684
Apartments:  67,334
General Tax Rate (2023):  2.246%
Effective Tax Rate (2023):  1.944%
Compare To Other Towns

Jersey City Market Indicators

PRICE INDEX

Average Price* (12mo):  $735,306
Homes Sold* (12mo):  212
PRICE INDEX
SINGLE FAMILY HOME SALES

Jersey City, NJ
12 Month Moving Average


1 YR 2 YR 3 YR 5 YR 7 YR MAX
 

Download Full Home Sales Report

PRICE INDEX

Average Price* (12mo):  $676,831
Apatments Sold* (12mo):  1,121
PRICE INDEX
APARTMENT SALES

Jersey City, NJ
12 Month Moving Average


1 YR 2 YR 3 YR 5 YR 7 YR MAX

 

Download Full Apartment Sales Report

REAL ESTATE TAXES

General Tax Rate (2023):  2.246%
Effective Tax Rate (2023):  1.944%
GENRAL TAX RATE - Jersey City, NJ



MADISON ADAMSTM

office: 201-760-1100
84 E Ridgewood Ave, Suite 201
Ridgewood, NJ 07450
201-760-1100 (office)
201-760-1102 (fax)

Contact Info

FOR APPOINTMENTS CONTACT


Sales Associate
914-261-6031 (cell)

Madisom Adams Sales Associate Georgine Addeo


Sales Associate
201-724-6913 (cell)

Madisom Adams Sales Associate Carmela Maggio


Sales Associate
551-358-4252 (cell)

Madisom Adams Sales Associate Henry A. Washington


Real estate inventory
Jersey City
Homes : $379,900 - 2,895,000 68
Condos : $140,000 - 6,499,000 480
Co-ops : $360,000 - 529,500 4
Twnhs : $369,000 - 1,775,000 13
2-4 Fam : $400,000 - 2,395,000 124
5+ Fam : $1,400,000 - 1,650,000 2
Land : $275,000 - 7,900,000 20
Rentals : $1,650 - 6,200 49
Mixd Use : $1,400,000 - 1,950,000 6
Com S : -
Com L : -
Biz : $35,000 - 900,000 12


Similar Listings in Jersey City

The data relating to the real estate for sale on this web site comes in part from the Internet Data Exchange Program of the NJMLS. Real estate listings held by brokerage firms other than Madison Adams are marked with the Internet Data Exchange logo and information about them includes the name of the listing brokers. Some properties listed with the participating brokers do not appear on this website at the request of the seller. Listings of brokers that do not participate in Internet Data Exchange do not appear on this website.
NJMLS is the owner of the copyrights of the listing content displayed for IDX. The NJMLS Internet Data Exchange Logo is a service mark owned by the NJMLS, Inc. All information deemed reliable but not guaranteed. Last date updated: 11/18/2025 00:05 AM Source: New Jersey Multiple Listing Service, Inc. “©2025 New Jersey Multiple Listing Service, Inc. All rights reserved.”


General Tax Rate is used to determine the amount of real estate tax levied upon a particular property. This rate is used to compute the tax bill.

Effective Tax Rate is used to compare of one district to another district based on the assumption that all districts are at 100% valuation. This rate has been computed by the State of New Jersey Department of the Treasury using County Equalization Average Ratios. This rate is NOT to be used to compute the tax bill.

Data Source: US Census 2010, NJ MLS, State of New Jersey Department of the Treasury

(A) Start Address :
(B) End Address : Get Directions

Need More Info

First Name:
Last Name:
E-mail:
Tel:--
Message:
Join Madison Adams
Market Reports



Contact Us

Please read the Consumer Information Statement (CIS)


  

Madison AdamsTM

84 E Ridgewood Ave, Suite 201
Ridgewood, NJ 07450
201 760-1100 (office)
201 760-1102 (fax)
office@madisonadams.com