2-4 Family Home For Sale in Kearny, NJ
 

MLS# : 250022595

Street : 137 DEVON ST
Price : $499,000
Town : Kearny, NJ 07032
Annual Taxes : $7,627

PROPERTY DETAILS

# of Rooms :
Bedrooms :
Full Baths :
Half Baths :
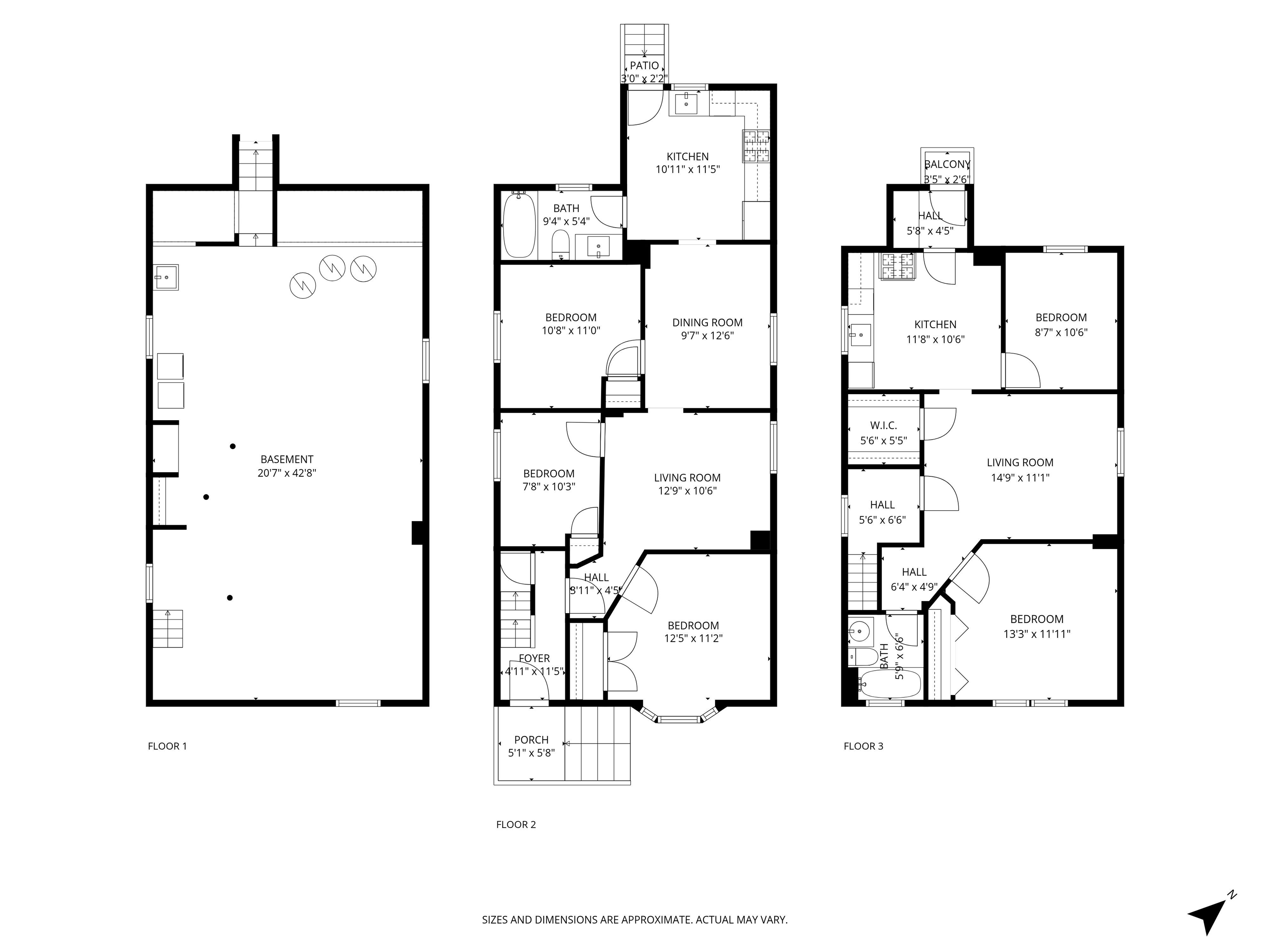
Basement : Full, Unfinished
Year Built :
Lot Size :
Style : Other-See Remarks
Exterior Finish : Aluminum/Vinyl
Exterior : Aluminum/Vinyl
Heat/Cool : A/C Window, Gas, Hot Water

PROPERTY DESCRIPTION

Don't miss this opportunity for an owner-occupant or savvy investor! This 2-family home in an established neighborhood offers immediate income potential. Featuring: Unit 1, a recently renovated 3-bedroom, 1-bath ready for top-market rent & unit 2, a well-maintained 2-bedroom, 1-bath. Live in one unit or rent both for maximum return. Solid bones, also an opportunity to add value through future renovation! Close to transportation, restaurants, and shops nearby.

Amenities

This listing is a courtesy of KELLER WILLIAMS CITY LIFE REALTY
201-659-8600 office, listing agent ROSSY GUZMAN

About Kearny, NJ Real Estate Market

Spread over 10.27 square miles, Kearny is a town located in the western part of Hudson County in New Jersey. This suburb of Newark is home to more than 40,000 people and shares its borders with East Newark, Lyndhurst, Harrison, North Arlington and Secaucus. Kearny is separated from nearby cities like Belleville and Newark by the Passaic River, while the Hackensack River separates Kearny from Jersey City.

The whole town of Kearny is divided into three parts – Kearny Uplands, South Kearny and Kearny Meadows. The main streets of Kearny where you can find various New Jersey houses are Midland Avenue, Schuyler Avenue, Bergen Avenue and Passaic Avenue.

The town’s name is in honour of Philip Kearny, who served as a general in the US Army during the Civil War. It was established as a township by an act of the New Jersey Legislature in 1967 from the portions of Harrison Township. In 1899, Kearny got established as a town based on the results of a referendum.
There are several parks in Kearny, which are there along the Passaic River, such as Riverbank Park, Bunnyland Hill, West Hudson Park and Kearny Playground. Most of these parks serve as recreational areas.
Population:  35,284
Total Housing Units:  12,035
Single Family Homes:  8,938
Apartments:  3,097
General Tax Rate (2023):  10.566%
Effective Tax Rate (2023):  2.050%
Compare To Other Towns

Kearny Market Indicators

PRICE INDEX

Average Price* (12mo):  $586,563
Homes Sold* (12mo):  26
PRICE INDEX
SINGLE FAMILY HOME SALES

Kearny, NJ
12 Month Moving Average


1 YR 2 YR 3 YR 5 YR 7 YR MAX
 

Download Full Home Sales Report

PRICE INDEX

Average Price* (12mo):  N/A
Apatments Sold* (12mo):  N/A

REAL ESTATE TAXES

General Tax Rate (2023):  10.566%
Effective Tax Rate (2023):  2.050%
GENRAL TAX RATE - Kearny, NJ



MADISON ADAMSTM

office: 201-760-1100
84 E Ridgewood Ave, Suite 201
Ridgewood, NJ 07450
201-760-1100 (office)
201-760-1102 (fax)

Contact Info

FOR APPOINTMENTS CONTACT


Sales Associate
201-982-0358 (cell)

Madisom Adams Sales Associate Yuriy Zatuchny


Sales Associate
551-358-4252 (cell)

Madisom Adams Sales Associate Henry A. Washington


Licensed as Marek Zagorski
Broker
201-478-3185 (cell)

Madisom Adams Broker Marek Zagorski


Real estate inventory
Kearny
Homes : $435,000 - 999,000 26
Condos : $430,000 - 430,000 1
Co-ops : -
Twnhs : -
2-4 Fam : $499,000 - 900,000 5
5+ Fam : -
Land : $625,000 - 625,000 2
Rentals : $1,650 - 3,100 43
Mixd Use : $780,000 - 999,000 3
Com S : -
Com L : -
Biz : $95,000 - 800,000 3


Similar Listings in Kearny

The data relating to the real estate for sale on this web site comes in part from the Internet Data Exchange Program of the NJMLS. Real estate listings held by brokerage firms other than Madison Adams are marked with the Internet Data Exchange logo and information about them includes the name of the listing brokers. Some properties listed with the participating brokers do not appear on this website at the request of the seller. Listings of brokers that do not participate in Internet Data Exchange do not appear on this website.
NJMLS is the owner of the copyrights of the listing content displayed for IDX. The NJMLS Internet Data Exchange Logo is a service mark owned by the NJMLS, Inc. All information deemed reliable but not guaranteed. Last date updated: 11/05/2025 00:05 AM Source: New Jersey Multiple Listing Service, Inc. “©2025 New Jersey Multiple Listing Service, Inc. All rights reserved.”


General Tax Rate is used to determine the amount of real estate tax levied upon a particular property. This rate is used to compute the tax bill.

Effective Tax Rate is used to compare of one district to another district based on the assumption that all districts are at 100% valuation. This rate has been computed by the State of New Jersey Department of the Treasury using County Equalization Average Ratios. This rate is NOT to be used to compute the tax bill.

Data Source: US Census 2010, NJ MLS, State of New Jersey Department of the Treasury

(A) Start Address :
(B) End Address : Get Directions

Need More Info

First Name:
Last Name:
E-mail:
Tel:--
Message:
Join Madison Adams
Market Reports



Contact Us

Please read the Consumer Information Statement (CIS)


  

Madison AdamsTM

84 E Ridgewood Ave, Suite 201
Ridgewood, NJ 07450
201 760-1100 (office)
201 760-1102 (fax)
office@madisonadams.com