MLS# : 250022358
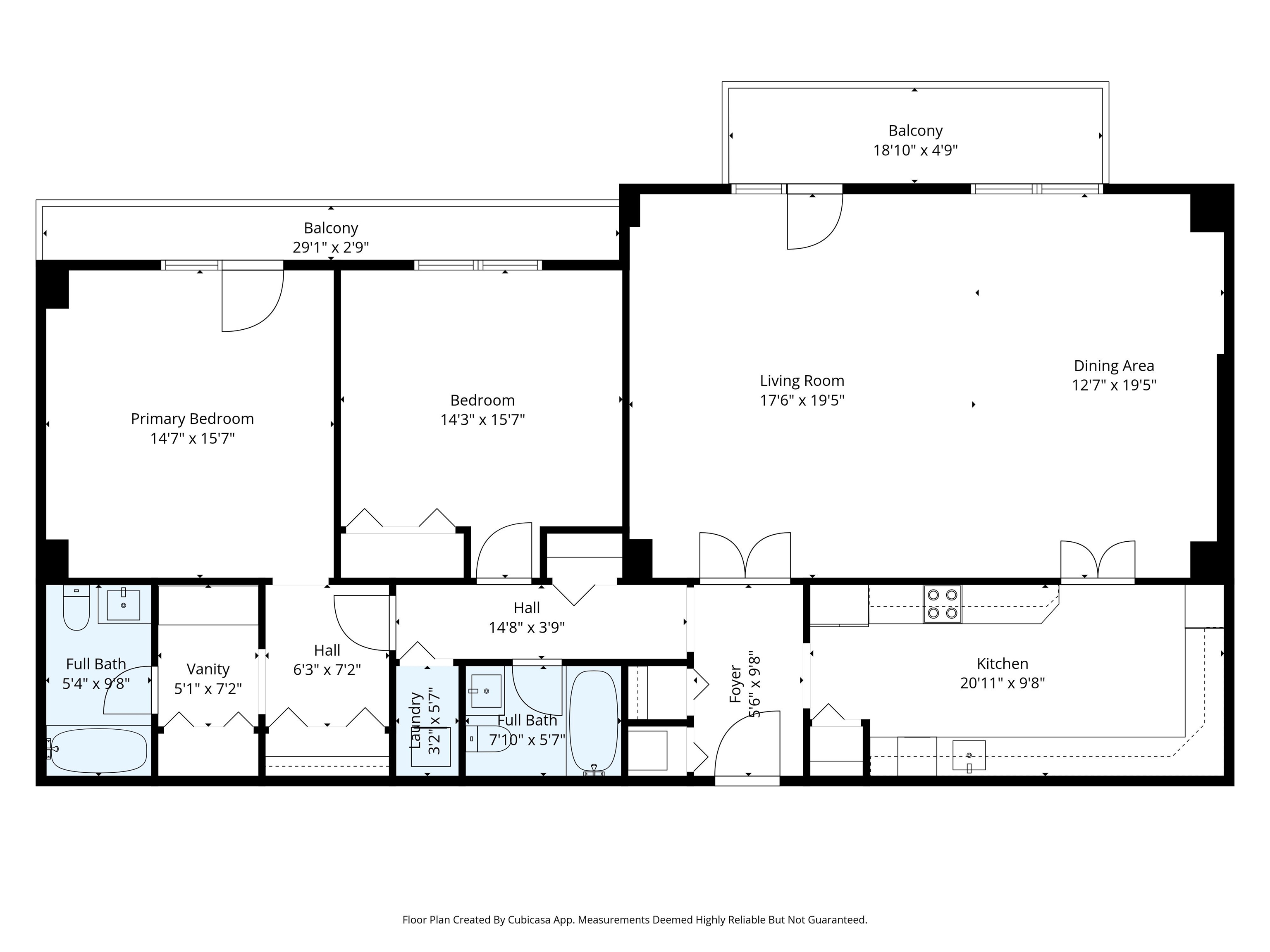
Port Liberte is undeniably one of the most unique communities along the Hudson River. It is a full amenity community of townhomes and condos built along a series of canals - with boat slips and a marina overlooking Downtown Manhattan and The Statue of Liberty. Residents enjoy a tranquil escape from the hustle of New York City - just a 20 minute ferry ride from Wall Street and a short ride to the Grove Street Path on the community’s shuttle service. Every leisure activity and amenity are right at your doorstep. Residents have access to multiple gyms, tennis and basketball courts, pools and hot tubs, 24-hour gated security, a club house, marina, children's playground, dog park and an esplanade along the river’s edge. If golf is your sport of choice, one of the paths leads directly to Liberty National Golf Course. As for your private sanctuary within this sanctuary, 100 Shearwater Court #26 will not disappoint! This well appointed home features an open floor plan of 1,550 square feet - including an oversized living/dining “great room,†two terraces, a GORGEOUS kitchen with light stone countertops, warm rich cabinetry, and a top-of-the-line SMART Samsung appliance package. As you explore the space, two lovely bedrooms and bathrooms can be found at the other end of the home, along with storage galore - double door closets in both bedrooms, a coat closet, a linen closet, and a closet which houses a full-sized Samsung washer/dryer. Smart technology features abound - with Nest thermostat, custom lighting, electric, a sound system, you name it, it’s wired and ready! Condo also comes with a deeded garage parking space just downstairs from the unit (wired and ready for an EV charger). Note: amenities AND utilities (water/heat/hotwater) are all included as part of the homeowner’s association fee. Seller is offering generous purchase incentives to qualified Buyers. Reach out and learn more today!
Dishwasher, Disposal, Microwave, Refrigerator, Washer/Dryer, Oven/Range Electric
    This listing is a courtesy of COLDWELL BANKER
         
201-716-0220 office, listing agent CARYN VITOLO
         
    
| Population: | 267,345 | 
| Total Housing Units: | 104,018 | 
| Single Family Homes: | 36,684 | 
| Apartments: | 67,334 | 
| General Tax Rate (2023): | 2.246% | 
| Effective Tax Rate (2023): | 1.944% | 
| Compare To Other Towns | 
| Average Price* (12mo): | $683,110 | 
| Apatments Sold* (12mo): | 1,126 | 
 
                        | Homes : | $379,900 - 3,195,000 | 68 | 
| Condos : | $169,000 - 6,499,000 | 510 | 
| Co-ops : | $360,000 - 529,500 | 3 | 
| Twnhs : | $369,000 - 1,775,000 | 22 | 
| 2-4 Fam : | $379,900 - 3,195,000 | 134 | 
| 5+ Fam : | $1,400,000 - 1,650,000 | 2 | 
| Land : | $85,000 - 7,900,000 | 22 | 
| Rentals : | $1,790 - 6,250 | 53 | 
| Mixd Use : | $1,400,000 - 1,950,000 | 6 | 
| Com S : | - | |
| Com L : | - | |
| Biz : | $35,000 - 900,000 | 12 | 
 
	
  
    The data relating to the real estate for sale on this web site comes in part from the Internet Data Exchange Program of the NJMLS. Real estate listings held by brokerage firms other than Madison Adams are marked with the Internet Data Exchange logo and information about them includes the name of the listing brokers. Some properties listed with the participating brokers do not appear on this website at the request of the seller. Listings of brokers that do not participate in Internet Data Exchange do not appear on this website.
    
NJMLS is the owner of the copyrights of the listing content displayed for IDX. The NJMLS Internet Data Exchange Logo is a service mark owned by the NJMLS, Inc.
All information deemed reliable but not guaranteed. Last date updated: 10/30/2025 00:05 AM
Source: New Jersey Multiple Listing Service, Inc.
“©2025 New Jersey Multiple Listing Service, Inc. All rights reserved.”
    
        
General Tax Rate is used to determine the amount of real estate tax levied upon a particular property. This rate is used to compute the tax bill.
Effective Tax Rate is used to compare of one district to another district based on the assumption that all districts are at 100% valuation. This rate has been computed by the State of New Jersey Department of the Treasury using County Equalization Average Ratios.  This rate is NOT to be used to compute the tax bill.
Data Source: US Census 2010, NJ MLS, State of New Jersey Department of the Treasury
        
Please read the Consumer Information Statement (CIS)