Commercial space For Sale in Jersey City, NJ
 

MLS# : 250021859

Street : 815 MONTGOMERY ST
Price : $1,999,999
Town : Jersey City, NJ 07306
Annual Taxes : $14,232

PROPERTY DETAILS

PROPERTY DESCRIPTION

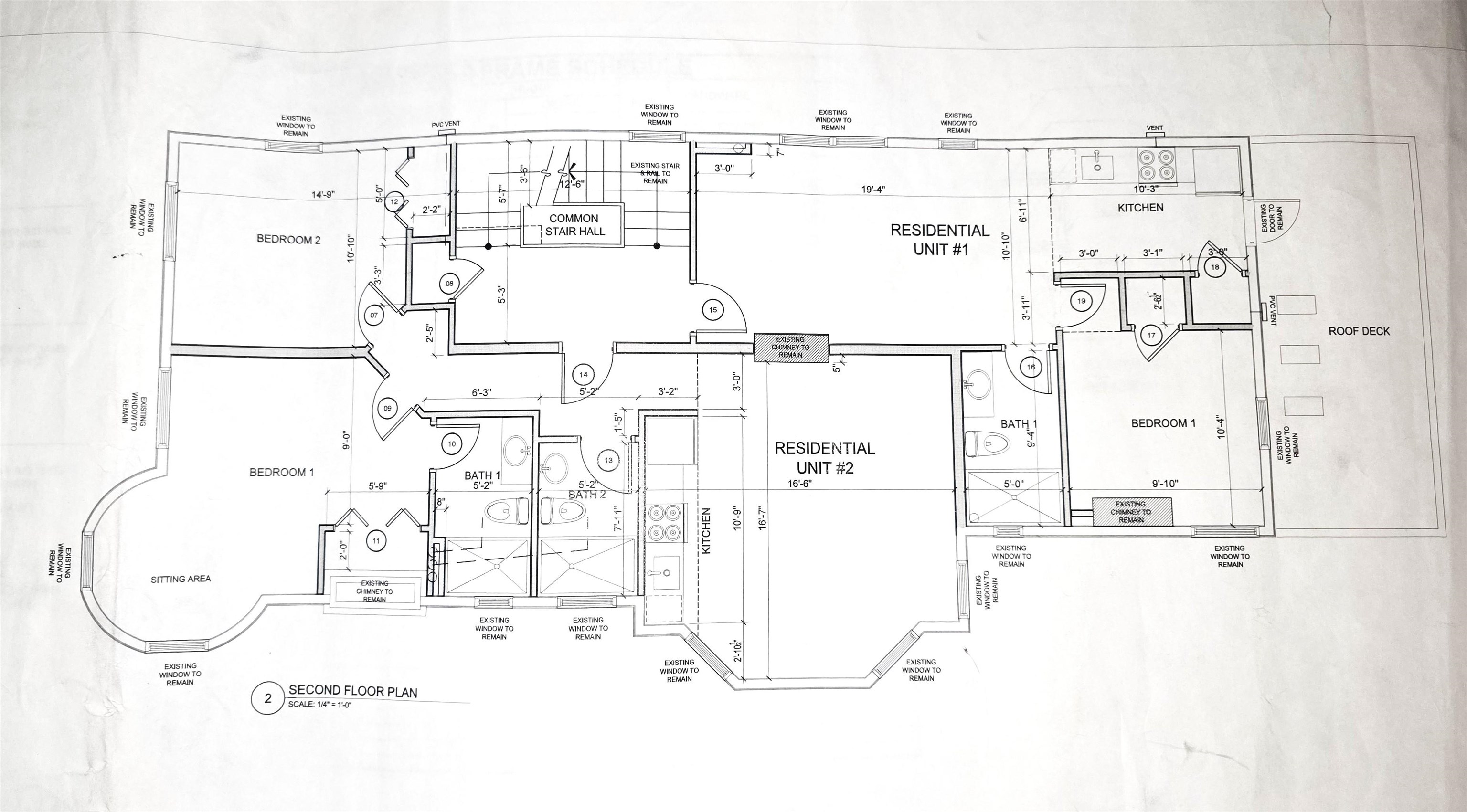
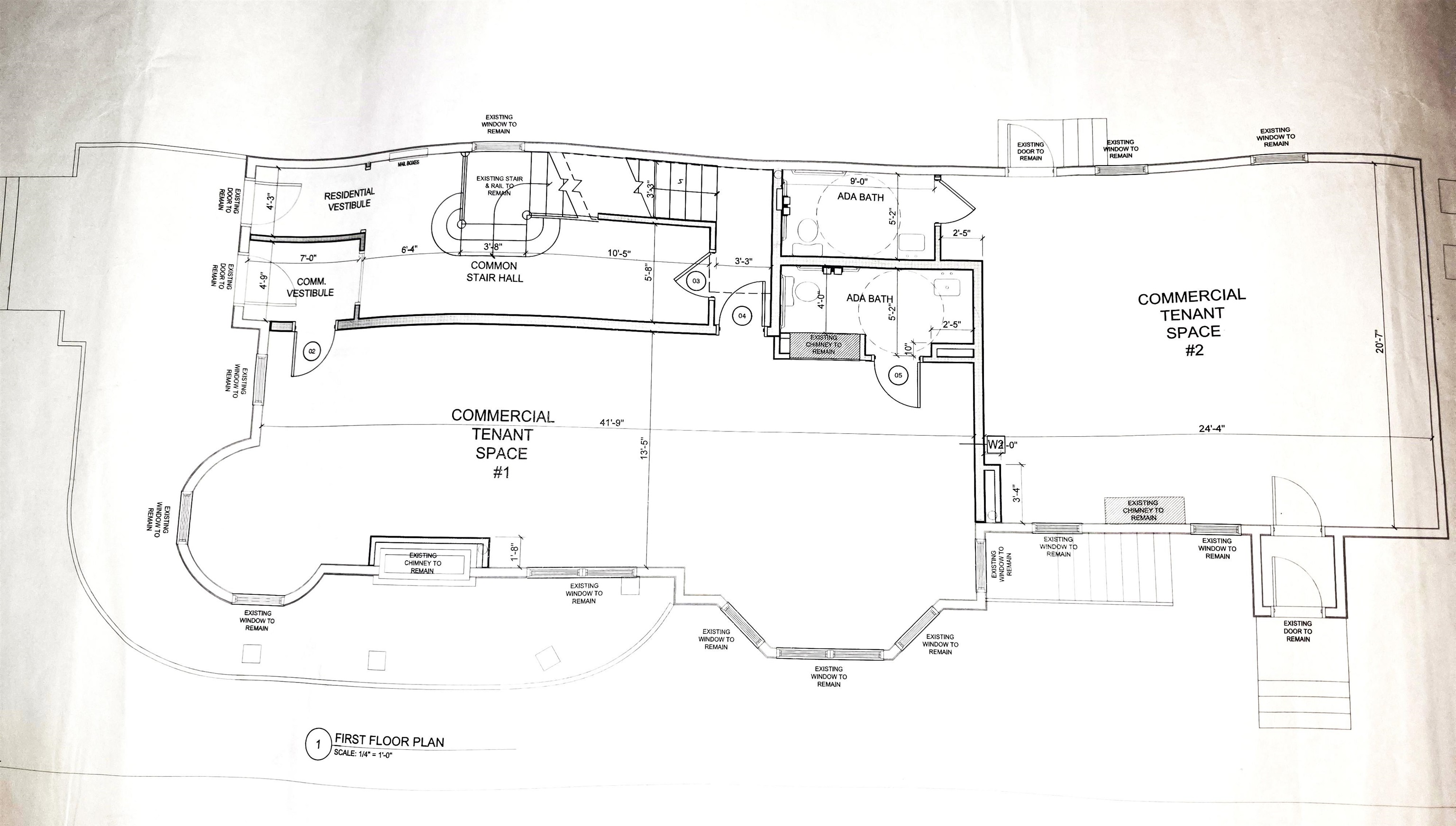
LOCATION - LOCATION - LOCATION!! Unique opportunity to own and develop your own vision or to refurbish this Victorian property. This is a mixed use property with approved plans and is framed out for both the commercial and residential buildout. The property is in an RH-2 redevelopment zone. The existing, approved plans include 5 total units, 2 commercial units with ADA compliance and 3 residential units including 2 - 2 bedroom/2 bath and 1 -1 bedroom /1 bath (3 residential units). ALL NEW are the separate gas lines, electric meters and water/sprinkler system, a large cost savings to the new owner! Please reference the plans in the attached photos. The lot includes at least 6 parking spaces. Contact for private viewing!!

Amenities

This listing is a courtesy of GROUP TWENTY SIX LLC
201-969-2626 office, listing agent JEANNE STEFONETTI

About Jersey City, NJ Real Estate Market

With an area of 21.13 square miles and a population of more than 290,000, Jersey City is one of the largest cities in the USA and the second-most populous city in New Jersey after Newark. A part of Hudson County from New Jersey and the New York metropolitan area, Jersey City is present on the west of Hackensack River, on a peninsula known as Bergen Neck.

Jersey City currently serves as a prime hub for distribution and transportation terminus for the Port of New York and New Jersey. Ever since the redevelopment of the Jersey City Waterfront happened, Jersey City became a major hub for banking and finance in the United States of America. All these developments in these years also resulted in the development of Hudson County real estate in the city.

Consisting of most of the parts of Ellis Island, Jersey City also surrounds Liberty City through its waters in the Upper New York Bay. Thanks to its proximity and easy connectivity to Manhattan, Jersey City is also considered the sixth borough of New York City. Jersey City has some of the earliest European settlements in North America, which played a crucial role in the development of various sections of the city.
Population:  267,345
Total Housing Units:  104,018
Single Family Homes:  36,684
Apartments:  67,334
General Tax Rate (2023):  2.246%
Effective Tax Rate (2023):  1.944%
Compare To Other Towns

Jersey City Market Indicators

PRICE INDEX

Average Price* (12mo):  $724,054
Homes Sold* (12mo):  206
PRICE INDEX
SINGLE FAMILY HOME SALES

Jersey City, NJ
12 Month Moving Average


1 YR 2 YR 3 YR 5 YR 7 YR MAX
 

Download Full Home Sales Report

PRICE INDEX

Average Price* (12mo):  $683,110
Apatments Sold* (12mo):  1,126
PRICE INDEX
APARTMENT SALES

Jersey City, NJ
12 Month Moving Average


1 YR 2 YR 3 YR 5 YR 7 YR MAX

 

Download Full Apartment Sales Report

REAL ESTATE TAXES

General Tax Rate (2023):  2.246%
Effective Tax Rate (2023):  1.944%
GENRAL TAX RATE - Jersey City, NJ



MADISON ADAMSTM

office: 201-760-1100
84 E Ridgewood Ave, Suite 201
Ridgewood, NJ 07450
201-760-1100 (office)
201-760-1102 (fax)

Contact Info

FOR APPOINTMENTS CONTACT


Sales Associate
917-863-6560 (cell)

Madisom Adams Sales Associate Cindy Chiashin Shih


Sales Associate
201-724-6913 (cell)

Madisom Adams Sales Associate Carmela Maggio


Managing Partner
Broker Associate
646-279-8233 (cell)

Madisom Adams Broker Associate Helena Lobo-Zagorski


Real estate inventory
Jersey City
Homes : $379,900 - 3,195,000 71
Condos : $169,000 - 4,048,000 510
Co-ops : $360,000 - 529,500 4
Twnhs : $369,000 - 1,775,000 22
2-4 Fam : $379,900 - 3,195,000 147
5+ Fam : $1,650,000 - 1,650,000 1
Land : $85,000 - 7,900,000 21
Rentals : $1,700 - 6,250 53
Mixd Use : $1,599,000 - 1,950,000 4
Com S : -
Com L : -
Biz : $35,000 - 600,000 12


Similar Listings in Jersey City

The data relating to the real estate for sale on this web site comes in part from the Internet Data Exchange Program of the NJMLS. Real estate listings held by brokerage firms other than Madison Adams are marked with the Internet Data Exchange logo and information about them includes the name of the listing brokers. Some properties listed with the participating brokers do not appear on this website at the request of the seller. Listings of brokers that do not participate in Internet Data Exchange do not appear on this website.
NJMLS is the owner of the copyrights of the listing content displayed for IDX. The NJMLS Internet Data Exchange Logo is a service mark owned by the NJMLS, Inc. All information deemed reliable but not guaranteed. Last date updated: 10/26/2025 00:05 AM Source: New Jersey Multiple Listing Service, Inc. “©2025 New Jersey Multiple Listing Service, Inc. All rights reserved.”


General Tax Rate is used to determine the amount of real estate tax levied upon a particular property. This rate is used to compute the tax bill.

Effective Tax Rate is used to compare of one district to another district based on the assumption that all districts are at 100% valuation. This rate has been computed by the State of New Jersey Department of the Treasury using County Equalization Average Ratios. This rate is NOT to be used to compute the tax bill.

Data Source: US Census 2010, NJ MLS, State of New Jersey Department of the Treasury

(A) Start Address :
(B) End Address : Get Directions

Need More Info

First Name:
Last Name:
E-mail:
Tel:--
Message:
Join Madison Adams
Market Reports



Contact Us

Please read the Consumer Information Statement (CIS)


  

Madison AdamsTM

84 E Ridgewood Ave, Suite 201
Ridgewood, NJ 07450
201 760-1100 (office)
201 760-1102 (fax)
office@madisonadams.com