Condo For Sale in Bayonne, NJ

MLS# : 250020985

Street : 88 WEST 20TH ST 1
Price : $725,000
Town : Bayonne, NJ 07002
Monthly Maintenance : $0
General Tax Rate (2023) : 2.682%

PROPERTY DETAILS

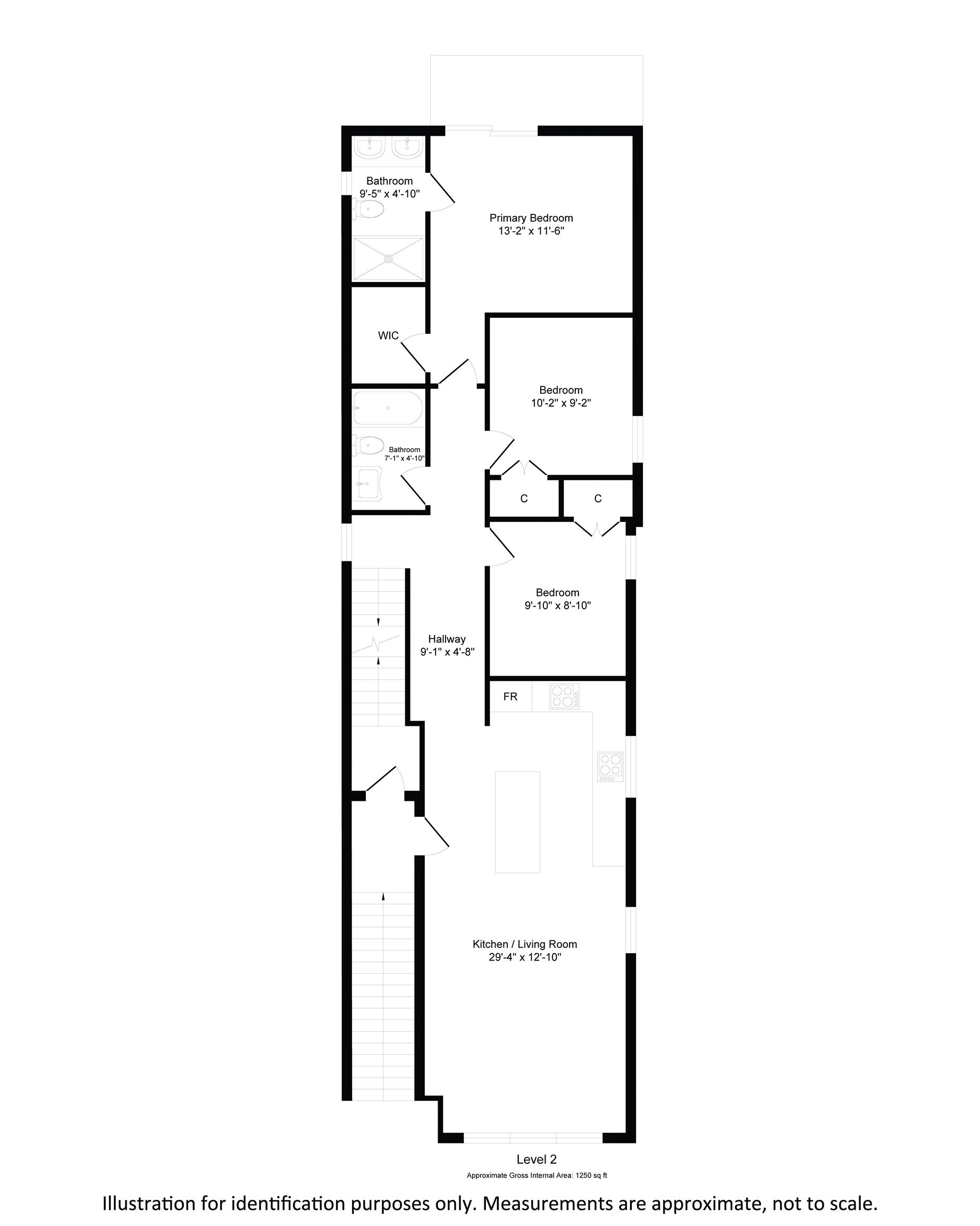
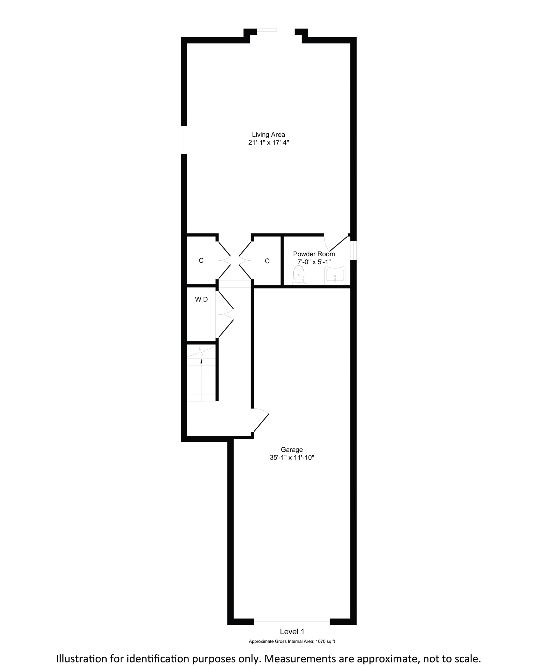
Bedrooms : 3
Full Baths :
Half Baths :
Garage :
Building Type :
Building/Complex :
Laundry :
Misc : Near Train,Near Shopping,Near Bus,Near Parks,Near Schools

PROPERTY DESCRIPTION

Welcome to the spectacular brand-new construction condo at 88 W 20th St in the sought after Bayonne neighborhood. This residence features bright and spacious 3 bedrooms and 2.5 bathrooms Duplex with 500sf private fenced yard and 2 Garage Parking + 1 Outdoors parking. It offers Central cooling/heating, beautiful oak flooring with sleek contemporary railings, designer kitchen with an Island equipped with custom white shaker cabinets, floating Carrera quartz countertops, black Samsung stainless steel appliance package includes a 5-burner range, French door refrigerator with ice maker, wall mount vent hood, dishwasher & microwave oven. Enjoy movies & entertaining in your living room with built-in surround sound ceiling and wall speakers, recessed lighting, Pella windows, in unit Washer/dryer and more. Generous bedrooms with custom closets, master bedroom had a large walk in closet and private balcony and beautiful fully tiled bathrooms with glass doors. Garage offers EV charger, and front door has a ring security system in place. This home has it all. Next to restaurants, shopping, parks, schools and Bus to/from NYC a block away and short walk to 22nd St Light Rail. First-time Homebuyer Program offered: 5.75% rate No Points, No PMI, No Bank Fees. Set up your tour to view this GEM.

Amenities

  • Intercom
  • Terrace
  • Hardwood Floor
Appliances Included :

Dishwasher, Microwave, Refrigerator, Washer/Dryer, Oven/Range Gas

This listing is a courtesy of LIBERTY REALTY LLC
201-610-1010 office, listing agent OLGA YEMELYANOVA

About Bayonne, NJ Real Estate Market

Situated on a peninsula between Newark Bay, Kill Van Kull and New York Bay in the Gateway Region, Bayonne is a city located in Hudson County of New Jersey state. The city has more than 70,000 people living as residents and was originally formed as a township from the portions of Bergen Township in 1861. In 1869, Bayonne was established as a city by an act of the New Jersey Legislature, which also resulted in the replacement of Bayonne Township.

Apart from having houses belonging to New Jersey real estate, the other forces which drive the economy of Bayonne are traditional manufacturing, maritime activities and distribution. The Cape Liberty Cruise Port located in Bayonne is a part of the Port of New York and New Jersey. Originally inhabited by Native Americans, Bayonne was claimed by the Netherlands when Henry Hudson discovered the Hudson River and places around it.

Spanning over 11.09 square miles, Bayonne shares its borders with Jersey City and is connected to Staten Island by the Bayonne Bridge. The main places of interest in Bayonne are the Bayonne Bridge, which is the fifth-largest steel arch bridge in the world, Bergen Point and a bird sanctuary on Shooters Island.
Population:  60,457
Total Housing Units:  22,712
Single Family Homes:  13,899
Apartments:  8,813
General Tax Rate (2023):  2.682%
Effective Tax Rate (2023):  2.000%
Compare To Other Towns

Bayonne Market Indicators

PRICE INDEX

Average Price* (12mo):  $531,929
Homes Sold* (12mo):  88
PRICE INDEX
SINGLE FAMILY HOME SALES

Bayonne, NJ
12 Month Moving Average


1 YR 2 YR 3 YR 5 YR 7 YR MAX
 

Download Full Home Sales Report

PRICE INDEX

Average Price* (12mo):  $301,206
Apatments Sold* (12mo):  93
PRICE INDEX
APARTMENT SALES

Bayonne, NJ
12 Month Moving Average


1 YR 2 YR 3 YR 5 YR 7 YR MAX

 

Download Full Apartment Sales Report

REAL ESTATE TAXES

General Tax Rate (2023):  2.682%
Effective Tax Rate (2023):  2.000%
GENRAL TAX RATE - Bayonne, NJ



MADISON ADAMSTM

office: 201-760-1100
84 E Ridgewood Ave, Suite 201
Ridgewood, NJ 07450
201-760-1100 (office)
201-760-1102 (fax)

Contact Info

FOR APPOINTMENTS CONTACT


Licensed as Marek Zagorski
Broker
201-478-3185 (cell)

Madisom Adams Broker Marek Zagorski


Sales Associate
201-725-1170 (cell)

Madisom Adams Sales Associate Juan Carlos Guevara


Sales Associate
917-863-6560 (cell)

Madisom Adams Sales Associate Cindy Chiashin Shih


Real estate inventory
Bayonne
Homes : $130,000 - 3,995,000 20
Condos : $175,750 - 725,000 21
Co-ops : -
Twnhs : $559,000 - 620,000 3
2-4 Fam : $575,000 - 2,275,000 44
5+ Fam : -
Land : $1,100,000 - 1,100,000 1
Rentals : $1,650 - 2,850 9
Mixd Use : $929,000 - 3,690,000 2
Com S : -
Com L : -
Biz : $28,000 - 148,000 4


Similar Listings in Bayonne

The data relating to the real estate for sale on this web site comes in part from the Internet Data Exchange Program of the NJMLS. Real estate listings held by brokerage firms other than Madison Adams are marked with the Internet Data Exchange logo and information about them includes the name of the listing brokers. Some properties listed with the participating brokers do not appear on this website at the request of the seller. Listings of brokers that do not participate in Internet Data Exchange do not appear on this website.
NJMLS is the owner of the copyrights of the listing content displayed for IDX. The NJMLS Internet Data Exchange Logo is a service mark owned by the NJMLS, Inc. All information deemed reliable but not guaranteed. Last date updated: 11/25/2025 00:05 AM Source: New Jersey Multiple Listing Service, Inc. “©2025 New Jersey Multiple Listing Service, Inc. All rights reserved.”


General Tax Rate is used to determine the amount of real estate tax levied upon a particular property. This rate is used to compute the tax bill.

Effective Tax Rate is used to compare of one district to another district based on the assumption that all districts are at 100% valuation. This rate has been computed by the State of New Jersey Department of the Treasury using County Equalization Average Ratios. This rate is NOT to be used to compute the tax bill.

Data Source: US Census 2010, NJ MLS, State of New Jersey Department of the Treasury

(A) Start Address :
(B) End Address : Get Directions

Need More Info

First Name:
Last Name:
E-mail:
Tel:--
Message:
Join Madison Adams
Market Reports



Contact Us

Please read the Consumer Information Statement (CIS)


  

Madison AdamsTM

84 E Ridgewood Ave, Suite 201
Ridgewood, NJ 07450
201 760-1100 (office)
201 760-1102 (fax)
office@madisonadams.com