Single Family Home For Sale in Jersey City, NJ

MLS# : 260006921

Street : 55 RESERVOIR AVE
Price : $2,450,000
Town : Jersey City, NJ 07307
Annual Taxes : $12,621

PROPERTY DETAILS

# of Rooms : 11
Bedrooms : 7
Full Baths :
Half Baths :
Basement : Finished, Full, Walk-Out
Year Built :
Lot Size :
Style : Colonial,Victorian,Multi-Level
Exterior Finish : Aluminum/Vinyl
Exterior : Aluminum/Vinyl
Heat/Cool : A/C Central, Gas, Hot Air

PROPERTY DESCRIPTION

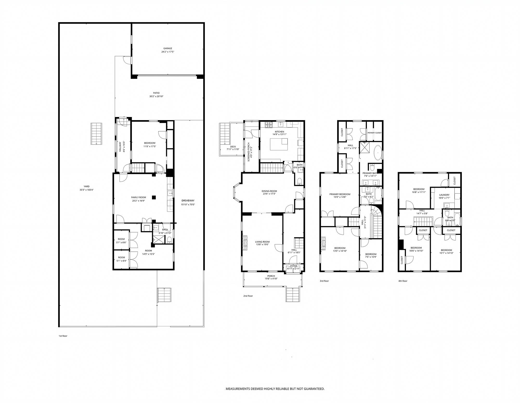
Experience the grandeur of this extremely rare, newly renovated Queen Anne-style Victorian with porch residence situated on an oversized lot, on arguably one of the most picturesque blocks in Jersey City Heights. This turn of century, expansive 7-bedroom, 4.5-bath pre-war masterpiece is filled with original detail while offering modern functionality, exceptional scale and rare parking. From the moment you arrive, original hardwood doors and trim set the tone for a home filled with timeless detail. Inside, you'll find refinished parquet inlay flooring, crown molding, soaring ceiling heights (11' on the main level), and preserved pocket doors that seamlessly connect the living and dining spaces. The gracious living room features a decorative hand-carved marble mantle with oversized windows and a bay alcove in the formal dining room flooding the home with natural light. A Victorian-era Lincrusta chair rail lines the hallway and staircase, further highlighting the home's historic character. The beautifully appointed kitchen offers custom mixed element cabinetry, sleek glossy, sub zero refrigerator, 6 burner wolf stove with vented hood, under counter sharp microwave, Viking dishwasher, Sharp microwave, and wine refrigerator with adjacent sunroom ideal. The second level features a spacious primary suite with abundant closet space and a luxurious en-suite bath complete with a double vanity, Kohler recessed medicine cabinets, Free standing soaking tub, and separate glass enclosed stand-up shower. Completing the floor are 2 bedrooms and a full bathroom appointed with a luxurious vanity and high end tile package and fixtures. The third level offers three additional bedrooms, a dedicated laundry room featuring an LG washer and dryer, marble countertops, and a Blanco sink, full bathroom with NYC skyline views-perfect for extended living or flexible use. The fully finished ground floor provides a versatile 1-bedroom, 1-bath layout, complete with a Bosch dishwasher and wine refrigerator, and hardwood flooring throughout. The full bathroom includes Kohler fixtures, making this an ideal guest suite, recreation space, or extended living area. Outside, a professionally landscaped fenced yard offers a rare 2-car garage, and driveway parking for 4-5 additional vehicles. Located just three blocks from Pershing Field, near Central Avenue shopping and dining, and moments from the 123 and 119 bus lines providing a quick commute to Manhattan- this is truly an opportunity to own a piece of Jersey City history with modern comfort, versatility and income potential.

Amenities

  • Hardwood Floor
Appliances Included :

Dishwasher, Refrigerator, Washer/Dryer, Oven/Range Gas

This listing is a courtesy of COLDWELL BANKER REALTY
201-212-5026 office, listing agent JILL K BIGGS

About Jersey City, NJ Real Estate Market

With an area of 21.13 square miles and a population of more than 290,000, Jersey City is one of the largest cities in the USA and the second-most populous city in New Jersey after Newark. A part of Hudson County from New Jersey and the New York metropolitan area, Jersey City is present on the west of Hackensack River, on a peninsula known as Bergen Neck.

Jersey City currently serves as a prime hub for distribution and transportation terminus for the Port of New York and New Jersey. Ever since the redevelopment of the Jersey City Waterfront happened, Jersey City became a major hub for banking and finance in the United States of America. All these developments in these years also resulted in the development of Hudson County real estate in the city.

Consisting of most of the parts of Ellis Island, Jersey City also surrounds Liberty City through its waters in the Upper New York Bay. Thanks to its proximity and easy connectivity to Manhattan, Jersey City is also considered the sixth borough of New York City. Jersey City has some of the earliest European settlements in North America, which played a crucial role in the development of various sections of the city.
Population:  267,345
Total Housing Units:  104,018
Single Family Homes:  36,684
Apartments:  67,334
General Tax Rate (2025):  2.335%
Effective Tax Rate (2025):  1.847%
Compare To Other Towns

Jersey City Market Indicators

PRICE INDEX

Average Price* (12mo):  $752,459
Homes Sold* (12mo):  179
PRICE INDEX
SINGLE FAMILY HOME SALES

Jersey City, NJ
12 Month Moving Average


1 YR 2 YR 3 YR 5 YR 7 YR MAX
 

Download Full Home Sales Report

PRICE INDEX

Average Price* (12mo):  $681,468
Apatments Sold* (12mo):  1,096
PRICE INDEX
APARTMENT SALES

Jersey City, NJ
12 Month Moving Average


1 YR 2 YR 3 YR 5 YR 7 YR MAX

 

Download Full Apartment Sales Report

REAL ESTATE TAXES

General Tax Rate (2025):  2.335%
Effective Tax Rate (2025):  1.847%
GENRAL TAX RATE - Jersey City, NJ



MADISON ADAMSTM

office: 201-760-1100
84 E Ridgewood Ave, Suite 201
Ridgewood, NJ 07450
201-760-1100 (office)
201-760-1102 (fax)

Contact Info

FOR APPOINTMENTS CONTACT


Sales Associate
917-863-6560 (cell)

Madisom Adams Sales Associate Cindy Chiashin Shih


Sales Associate
201-982-0358 (cell)

Madisom Adams Sales Associate Yuriy Zatuchny


Managing Partner
Broker Associate
646-279-8233 (cell)

Madisom Adams Broker Associate Helena Lobo-Zagorski


Real estate inventory
Jersey City
Homes : $419,000 - 2,950,000 53
Condos : $165,000 - 6,499,000 535
Co-ops : $350,000 - 554,000 5
Twnhs : $175,000 - 2,300,000 17
2-4 Fam : $415,000 - 2,950,000 124
5+ Fam : $1,400,000 - 1,550,000 3
Land : $599,000 - 4,800,000 22
Rentals : $1,650 - 5,500 48
Mixd Use : $1,400,000 - 1,550,000 3
Com S : -
Com L : -
Biz : $60,000 - 698,888 12


Similar Listings in Jersey City

The data relating to the real estate for sale on this web site comes in part from the Internet Data Exchange Program of the NJMLS. Real estate listings held by brokerage firms other than Madison Adams are marked with the Internet Data Exchange logo and information about them includes the name of the listing brokers. Some properties listed with the participating brokers do not appear on this website at the request of the seller. Listings of brokers that do not participate in Internet Data Exchange do not appear on this website.
NJMLS is the owner of the copyrights of the listing content displayed for IDX. The NJMLS Internet Data Exchange Logo is a service mark owned by the NJMLS, Inc. All information deemed reliable but not guaranteed. Last date updated: 04/17/2026 00:05 AM Source: New Jersey Multiple Listing Service, Inc. “©2026 New Jersey Multiple Listing Service, Inc. All rights reserved.”


General Tax Rate is used to determine the amount of real estate tax levied upon a particular property. This rate is used to compute the tax bill.

Effective Tax Rate is used to compare of one district to another district based on the assumption that all districts are at 100% valuation. This rate has been computed by the State of New Jersey Department of the Treasury using County Equalization Average Ratios. This rate is NOT to be used to compute the tax bill.

Data Source: US Census 2010, NJ MLS, State of New Jersey Department of the Treasury

(A) Start Address :
(B) End Address : Get Directions

Need More Info

First Name:
Last Name:
E-mail:
Tel:--
Message:
Join Madison Adams
Market Reports



Contact Us

Please read the Consumer Information Statement (CIS)


  

Madison AdamsTM

84 E Ridgewood Ave, Suite 201
Ridgewood, NJ 07450
201 760-1100 (office)
201 760-1102 (fax)
office@madisonadams.com