Land For Sale in Jersey City, NJ
 

MLS# : 260001590

Street : 1729-1733 KENNEDY BLVD
Price : $3,950,000
Town : Jersey City, NJ 07305
General Tax Rate (2023) : 2.246%

PROPERTY DETAILS

PROPERTY DESCRIPTION

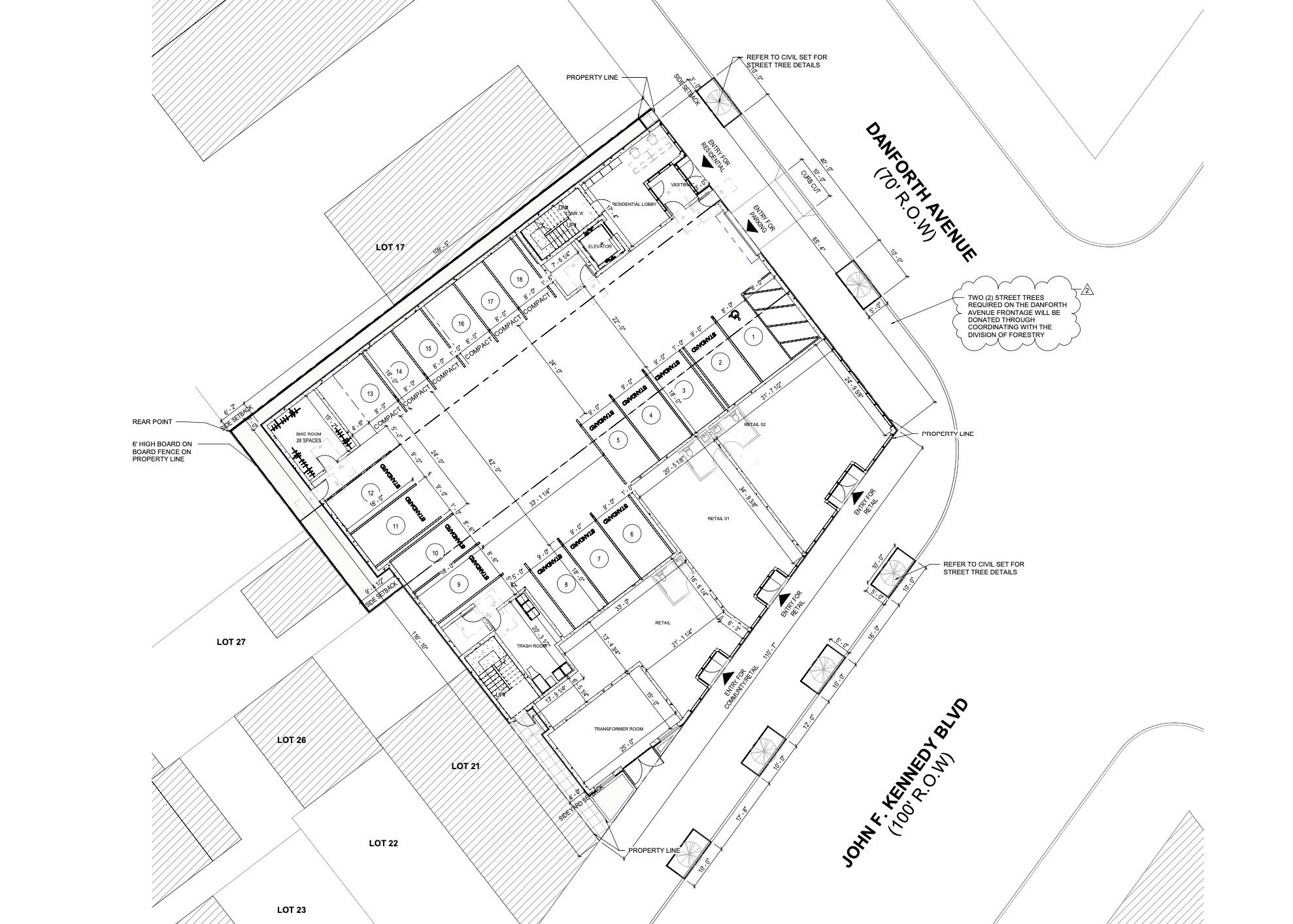
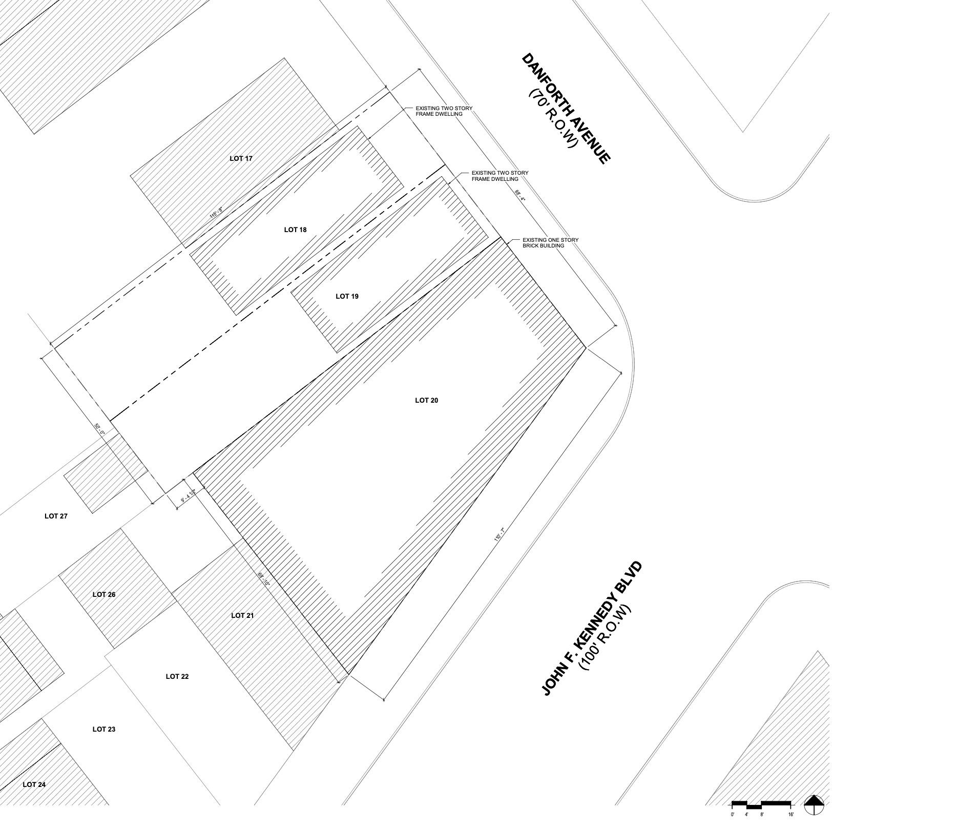
Fully approved mixed-use development opportunity on a highly visible, high-traffic corner along JFK Boulevard in Jersey City’s designated redevelopment zone. This shovel-ready project spans 1727–1733 JFK Blvd and offers a rare combination of scale, income flexibility, and future upside—saving a buyer years of entitlement risk and carrying costs. The approved plans call for a 54-unit residential building featuring a diverse mix of 1-, 2-, and 3-bedroom layouts, including 8 affordable housing units, paired with 3 ground-floor retail spaces and 18 on-site garage parking spaces. The project is thoughtfully designed to meet strong renter demand while maximizing long-term value in a rapidly improving corridor. Adding to the opportunity, the existing retail component can be immediately utilized, with the ability to operate up to 6 retail spaces generating over $15,000/month in income, offering a unique bridge strategy while preparing for construction. The site is currently fully vacant and development-ready, allowing a buyer to proceed without tenant displacement. Included in the offering are two oversized residential lots on Danforth Avenue, providing an additional value-add or alternate development path, with the ability to construct large 3-bedroom condominium units—ideal for phased development, condo sellout, or supplemental rental inventory. Located at the intersection of JFK Boulevard and Danforth Avenue, this corner site benefits from exceptional visibility, strong foot and vehicle traffic, proximity to transit, and sustained demand driven by Jersey City’s continued growth. The combination of approved density, mixed-use flexibility, existing income potential, and additional buildable lots makes this a highly versatile acquisition suitable for developers, investors, or owner-users seeking scale with minimized execution risk. A rare, fully approved mixed-use project with immediate income and long-term upside in one of Jersey City’s most active redevelopment corridors.

Current Zoning & Permited Use

This listing is a courtesy of EXP REALTY LLC
866-201-6210 office, listing agent JAMIE MORENG

About Jersey City, NJ Real Estate Market

With an area of 21.13 square miles and a population of more than 290,000, Jersey City is one of the largest cities in the USA and the second-most populous city in New Jersey after Newark. A part of Hudson County from New Jersey and the New York metropolitan area, Jersey City is present on the west of Hackensack River, on a peninsula known as Bergen Neck.

Jersey City currently serves as a prime hub for distribution and transportation terminus for the Port of New York and New Jersey. Ever since the redevelopment of the Jersey City Waterfront happened, Jersey City became a major hub for banking and finance in the United States of America. All these developments in these years also resulted in the development of Hudson County real estate in the city.

Consisting of most of the parts of Ellis Island, Jersey City also surrounds Liberty City through its waters in the Upper New York Bay. Thanks to its proximity and easy connectivity to Manhattan, Jersey City is also considered the sixth borough of New York City. Jersey City has some of the earliest European settlements in North America, which played a crucial role in the development of various sections of the city.
Population:  267,345
Total Housing Units:  104,018
Single Family Homes:  36,684
Apartments:  67,334
General Tax Rate (2023):  2.246%
Effective Tax Rate (2023):  1.944%
Compare To Other Towns

Jersey City Market Indicators

PRICE INDEX

Average Price* (12mo):  $743,066
Homes Sold* (12mo):  184
PRICE INDEX
SINGLE FAMILY HOME SALES

Jersey City, NJ
12 Month Moving Average


1 YR 2 YR 3 YR 5 YR 7 YR MAX
 

Download Full Home Sales Report

PRICE INDEX

Average Price* (12mo):  $681,468
Apatments Sold* (12mo):  1,096
PRICE INDEX
APARTMENT SALES

Jersey City, NJ
12 Month Moving Average


1 YR 2 YR 3 YR 5 YR 7 YR MAX

 

Download Full Apartment Sales Report

REAL ESTATE TAXES

General Tax Rate (2023):  2.246%
Effective Tax Rate (2023):  1.944%
GENRAL TAX RATE - Jersey City, NJ



MADISON ADAMSTM

office: 201-760-1100
84 E Ridgewood Ave, Suite 201
Ridgewood, NJ 07450
201-760-1100 (office)
201-760-1102 (fax)

Contact Info

FOR APPOINTMENTS CONTACT


Licensed as Marek Zagorski
Broker
201-478-3185 (cell)

Madisom Adams Broker Marek Zagorski


Sales Associate
201-724-6913 (cell)

Madisom Adams Sales Associate Carmela Maggio


Sales Associate
917-863-6560 (cell)

Madisom Adams Sales Associate Cindy Chiashin Shih


Real estate inventory
Jersey City
Homes : $359,000 - 1,974,999 37
Condos : $165,000 - 6,499,000 422
Co-ops : $375,000 - 569,500 2
Twnhs : $439,900 - 2,300,000 9
2-4 Fam : $530,000 - 2,150,000 94
5+ Fam : $1,400,000 - 1,550,000 4
Land : $599,000 - 4,500,000 21
Rentals : $1,690 - 6,000 41
Mixd Use : $1,400,000 - 1,899,000 6
Com S : -
Com L : -
Biz : $65,000 - 900,000 13


Similar Listings in Jersey City

The data relating to the real estate for sale on this web site comes in part from the Internet Data Exchange Program of the NJMLS. Real estate listings held by brokerage firms other than Madison Adams are marked with the Internet Data Exchange logo and information about them includes the name of the listing brokers. Some properties listed with the participating brokers do not appear on this website at the request of the seller. Listings of brokers that do not participate in Internet Data Exchange do not appear on this website.
NJMLS is the owner of the copyrights of the listing content displayed for IDX. The NJMLS Internet Data Exchange Logo is a service mark owned by the NJMLS, Inc. All information deemed reliable but not guaranteed. Last date updated: 03/05/2026 00:05 AM Source: New Jersey Multiple Listing Service, Inc. “©2026 New Jersey Multiple Listing Service, Inc. All rights reserved.”


General Tax Rate is used to determine the amount of real estate tax levied upon a particular property. This rate is used to compute the tax bill.

Effective Tax Rate is used to compare of one district to another district based on the assumption that all districts are at 100% valuation. This rate has been computed by the State of New Jersey Department of the Treasury using County Equalization Average Ratios. This rate is NOT to be used to compute the tax bill.

Data Source: US Census 2010, NJ MLS, State of New Jersey Department of the Treasury

(A) Start Address :
(B) End Address : Get Directions

Need More Info

First Name:
Last Name:
E-mail:
Tel:--
Message:
Join Madison Adams
Market Reports



Contact Us

Please read the Consumer Information Statement (CIS)


  

Madison AdamsTM

84 E Ridgewood Ave, Suite 201
Ridgewood, NJ 07450
201 760-1100 (office)
201 760-1102 (fax)
office@madisonadams.com