Condo For Sale in Jersey City, NJ

MLS# : 260000524

Street : 124 GLENWOOD AVE 4
Price : $569,900
Town : Jersey City, NJ 07306
Monthly Maintenance : $130
General Tax Rate (2023) : 2.246%

PROPERTY DETAILS

Bedrooms : 4
Full Baths :
Half Baths :
Garage :
Building Type :
Building/Complex :
Laundry :
Misc : Near Train,Near Shopping,Near Bus,Near Parks,Near Schools,Near Path

PROPERTY DESCRIPTION

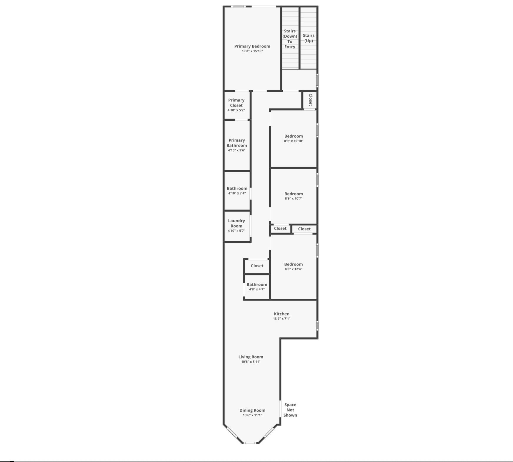
Open House - Sat 1.17 - 12-2 pm! 124 Glenwood Ave Unit #4 is a beautifully designed new construction residence, offering 1,329 square feet of modern living with four spacious bedrooms and 2.5 bathrooms. Backed by a 10-year builder’s warranty, this home provides peace of mind along with exceptional style and comfort. Natural light streams through the open concept living and dining area, creating a warm and inviting space that’s perfect for entertaining or relaxing. The flexible layout allows you to transform one of the four bedrooms into an office, nursery, or additional lounge area. The primary bedroom features a private balcony, providing a tranquil spot to enjoy your morning coffee or evening breeze. A serene private rooftop offers an ideal space for entertaining, relaxing, and enjoying the outdoors. The attention to detail throughout the home is unmatched, with 9-foot ceilings, hardwood floors, and floor-to-ceiling Fabuwood Timber Shaker cabinetry. The chef-inspired kitchen is outfitted with quartz countertops, a complementary backsplash, and a premium GE Profile stainless steel appliance package. The bathrooms are designed for both elegance and function, featuring Carrera-style porcelain tiles and sleek LED mirrors. Custom walk-in closets offer generous storage, while central air and heat ensure year-round comfort. Additional highlights include black-paneled Anderson windows, an in-unit washer and dryer, and a bright, airy feel throughout the home. Located just a stone’s throw from Lincoln Park, you’ll have access to tennis courts, a track, baseball fields, a dog park, and more. This prime location is close to McGinley Square and Journal Square, where you can enjoy local shops, restaurants, and vibrant community life. With convenient access to NJ Transit bus lines and the PATH station, commuting to Manhattan is quick and effortless. Schedule your private tour today and experience the exceptional lifestyle that awaits you at 124 Glenwood Ave Unit #4.

Amenities

  • Terrace
Appliances Included :

Dishwasher, Microwave, Refrigerator, Washer/Dryer, Oven/Range Gas

This listing is a courtesy of EXP REALTY LLC
866-201-6210 office, listing agent ERIK J GOLDFARB

About Jersey City, NJ Real Estate Market

With an area of 21.13 square miles and a population of more than 290,000, Jersey City is one of the largest cities in the USA and the second-most populous city in New Jersey after Newark. A part of Hudson County from New Jersey and the New York metropolitan area, Jersey City is present on the west of Hackensack River, on a peninsula known as Bergen Neck.

Jersey City currently serves as a prime hub for distribution and transportation terminus for the Port of New York and New Jersey. Ever since the redevelopment of the Jersey City Waterfront happened, Jersey City became a major hub for banking and finance in the United States of America. All these developments in these years also resulted in the development of Hudson County real estate in the city.

Consisting of most of the parts of Ellis Island, Jersey City also surrounds Liberty City through its waters in the Upper New York Bay. Thanks to its proximity and easy connectivity to Manhattan, Jersey City is also considered the sixth borough of New York City. Jersey City has some of the earliest European settlements in North America, which played a crucial role in the development of various sections of the city.
Population:  267,345
Total Housing Units:  104,018
Single Family Homes:  36,684
Apartments:  67,334
General Tax Rate (2023):  2.246%
Effective Tax Rate (2023):  1.944%
Compare To Other Towns

Jersey City Market Indicators

PRICE INDEX

Average Price* (12mo):  $738,325
Homes Sold* (12mo):  220
PRICE INDEX
SINGLE FAMILY HOME SALES

Jersey City, NJ
12 Month Moving Average


1 YR 2 YR 3 YR 5 YR 7 YR MAX
 

Download Full Home Sales Report

PRICE INDEX

Average Price* (12mo):  $681,468
Apatments Sold* (12mo):  1,096
PRICE INDEX
APARTMENT SALES

Jersey City, NJ
12 Month Moving Average


1 YR 2 YR 3 YR 5 YR 7 YR MAX

 

Download Full Apartment Sales Report

REAL ESTATE TAXES

General Tax Rate (2023):  2.246%
Effective Tax Rate (2023):  1.944%
GENRAL TAX RATE - Jersey City, NJ



MADISON ADAMSTM

office: 201-760-1100
84 E Ridgewood Ave, Suite 201
Ridgewood, NJ 07450
201-760-1100 (office)
201-760-1102 (fax)

Contact Info

FOR APPOINTMENTS CONTACT


Managing Partner
Broker Associate
646-279-8233 (cell)

Madisom Adams Broker Associate Helena Lobo-Zagorski


Sales Associate
201-725-1170 (cell)

Madisom Adams Sales Associate Juan Carlos Guevara


Sales Associate
914-261-6031 (cell)

Madisom Adams Sales Associate Georgine Addeo


Real estate inventory
Jersey City
Homes : $379,999 - 2,895,000 52
Condos : $175,000 - 6,499,000 404
Co-ops : $410,000 - 410,000 1
Twnhs : $450,000 - 1,775,000 7
2-4 Fam : $415,000 - 2,395,000 117
5+ Fam : $1,400,000 - 1,650,000 3
Land : $499,000 - 4,500,000 16
Rentals : $1,790 - 7,500 34
Mixd Use : $1,400,000 - 1,899,000 5
Com S : -
Com L : -
Biz : $18,500 - 900,000 11


Similar Listings in Jersey City

The data relating to the real estate for sale on this web site comes in part from the Internet Data Exchange Program of the NJMLS. Real estate listings held by brokerage firms other than Madison Adams are marked with the Internet Data Exchange logo and information about them includes the name of the listing brokers. Some properties listed with the participating brokers do not appear on this website at the request of the seller. Listings of brokers that do not participate in Internet Data Exchange do not appear on this website.
NJMLS is the owner of the copyrights of the listing content displayed for IDX. The NJMLS Internet Data Exchange Logo is a service mark owned by the NJMLS, Inc. All information deemed reliable but not guaranteed. Last date updated: 01/15/2026 00:05 AM Source: New Jersey Multiple Listing Service, Inc. “©2026 New Jersey Multiple Listing Service, Inc. All rights reserved.”


General Tax Rate is used to determine the amount of real estate tax levied upon a particular property. This rate is used to compute the tax bill.

Effective Tax Rate is used to compare of one district to another district based on the assumption that all districts are at 100% valuation. This rate has been computed by the State of New Jersey Department of the Treasury using County Equalization Average Ratios. This rate is NOT to be used to compute the tax bill.

Data Source: US Census 2010, NJ MLS, State of New Jersey Department of the Treasury

(A) Start Address :
(B) End Address : Get Directions

Need More Info

First Name:
Last Name:
E-mail:
Tel:--
Message:
Join Madison Adams
Market Reports



Contact Us

Please read the Consumer Information Statement (CIS)


  

Madison AdamsTM

84 E Ridgewood Ave, Suite 201
Ridgewood, NJ 07450
201 760-1100 (office)
201 760-1102 (fax)
office@madisonadams.com