Single Family Home For Sale in Weehawken, NJ

MLS# : 260000169

Street : 2214 PALISADE AVE
Price : $1,900,000
Town : Weehawken, NJ 07086
Annual Taxes : $21,703

PROPERTY DETAILS

# of Rooms : 14
Bedrooms : 7
Full Baths :
Half Baths :
Basement : None
Year Built :
Lot Size :
Style : Tudor
Exterior Finish : Brick
Exterior : Brick
Heat/Cool : A/C Wall, Gas, Other-See Remarks

PROPERTY DESCRIPTION

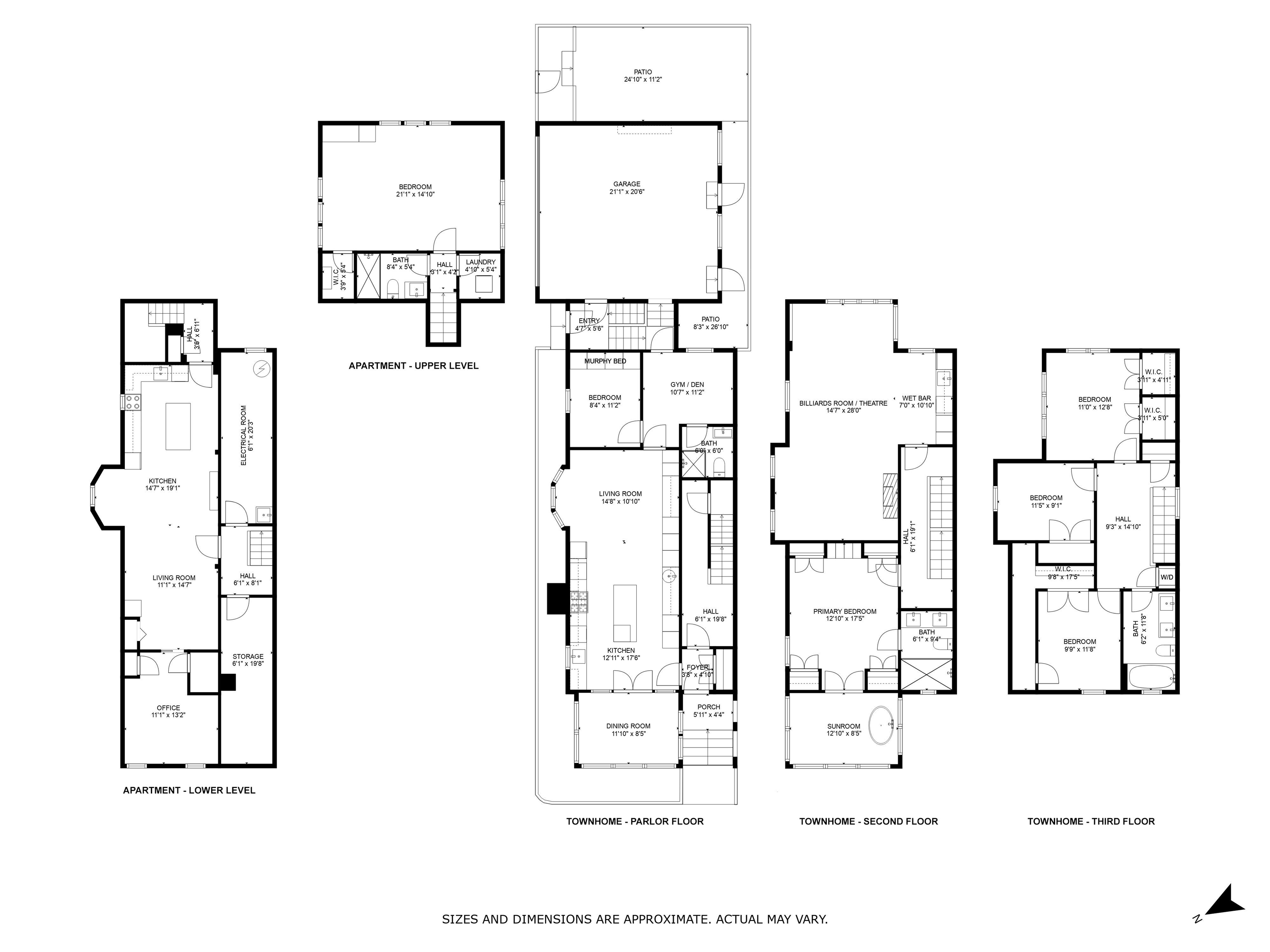
This exquisitely restored 2-family English Tudor in Weehawken, featuring a two-car garage, seamlessly combines charm with modern elegance. Fully renovated from top to bottom, this stunning home sits on a spacious corner lot, just moments from the park and township reservoir. With its refined design and impeccable craftsmanship, every detail exudes sophistication, making this residence an absolute stand out in the area. Renovated in 2021, with further upgrades in2023 and 2024, this home offers an exceptional living experience. Upon entering through the vestibule, you are greeted by beautiful mosaic tiles leading to a five-bedroom, three-bathroom home spanning three levels of thoughtfully crafted, custom design. The first floor boasts an open layout, featuring an expansive chef’s kitchen, a sunlit eat-in dining room, and a generous living room with wall-to-wall shelving. The kitchen is a culinary masterpiece with recently refinished wood cabinetry, sleek quartz countertops, and top-of-the-line stainless steel appliances including a Miele steam combination oven, built-in microwave and a kitchen sink with a reverse osmosis filter. Beyond the living room, you’ll find a bedroom with a Murphy bed—ideal as an office or study—and a den currently serving as a workout area. The second floor is an entertainer’s paradise, featuring a state-of-the-art wet bar and kitchen complete with a stainless steel wine fridge, dishwasher, and double ovens. This level also includes a spacious game room and a second living room with an HD video projection setup. The expansive primary bedroom offers custom handcrafted closets and an en-suite bathroom, along with a sunroom that features a luxurious bronze soaking tub. The third floor houses three bedrooms, two with vaulted ceilings, and one with soaring ceilings that provide breathtaking views of New York City. This level also includes another full bathroom and a washer/dryer. Throughout the home, you'll find spa-like bathrooms with frameless glass shower enclosures, custom lighting, crown moldings, and ample storage. The private apartment entrance leads you upstairs to a sun-filled main bedroom with custom shelving and storage, a full bathroom, and a washer/dryer. Alternatively, you can head downstairs to the second bedroom and newly renovated kitchen with wood cabinetry, tiled backsplash, quartz countertops and stainless steel appliances. This apartment is ideal as an in-law suite or a rental unit, offering the potential for rental income to offset your expenses. Additional features include built-in split A/C systems, radiant heated floors, an on-demand water heating system, a Springwell whole-house water filtration system, pristine hardwood floors, solar panels with net metering, and smart home technology, including Nest, Google Home, Lutron Caseta, and electronic locks. The two-car garage, with custom barn-style doors and remote operation, is equipped with an electric Tesla charger and offers additional storage space. At the rear of the home, an outdoor patio with slate flooring provides the perfect space for barbecuing and unwinding. This location provides excellent transportation options, with convenient access to buses and ferries that can get you to Midtown Manhattan in just 15 minutes. Weehawken boasts a variety of shops and restaurants, along with a stunning waterfront complex featuring multiple pools for relaxation and recreation.

Amenities

  • Hardwood Floor
Appliances Included :

Dishwasher, Microwave, Refrigerator, Washer/Dryer, Oven/Range Gas

This listing is a courtesy of BROWN HARRIS STEVENS NEW JERSEY
201-478-6700 office, listing agent WESTLEY L PAGE

About Weehawken, NJ Real Estate Market

A part of the New York Metropolitan area, Weehawken is located in the northern part of Hudson County in New Jersey state. It is situated on the Hudson Palisades, alongside the western shore of the Hudson River, and has a population of more than 17,000. The township of Weehawken is spread over 1.48 square miles in area and is surrounded by Hoboken, West New York and Union City.

The inspiration behind the name of the township of Weehawken evolved from the Algonquian language Lenape, which is interpreted as ‘Maize Land’ and ‘Rocks that look like trees’, with the latter indicating the Hudson Palisades.

Weehawken got established as a township in 1859 by an act of the New Jersey Legislature, including the portions of North Bergen and Hoboken. However, the actual development in the township began at the beginning of the 20th century, when many residential areas and New Jersey houses replaced the older hotels, estates and theatres. The arrival of European inhabitants further resulted in the development of real estate in this part of Hudson County. In the 20th century, Weehawken became a hub for embroidery factories while remaining a residential township to a large extent.
Population:  15,125
Total Housing Units:  6,804
Single Family Homes:  1,959
Apartments:  4,845
General Tax Rate (2023):  1.676%
Effective Tax Rate (2023):  1.802%
Compare To Other Towns

Weehawken Market Indicators

PRICE INDEX

Average Price* (12mo):  $1,101,956
Homes Sold* (12mo):  13
PRICE INDEX
SINGLE FAMILY HOME SALES

Weehawken, NJ
12 Month Moving Average


1 YR 2 YR 3 YR 5 YR 7 YR MAX
 

Download Full Home Sales Report

PRICE INDEX

Average Price* (12mo):  $905,154
Apatments Sold* (12mo):  63
PRICE INDEX
APARTMENT SALES

Weehawken, NJ
12 Month Moving Average


1 YR 2 YR 3 YR 5 YR 7 YR MAX

 

Download Full Apartment Sales Report

REAL ESTATE TAXES

General Tax Rate (2023):  1.676%
Effective Tax Rate (2023):  1.802%
GENRAL TAX RATE - Weehawken, NJ



MADISON ADAMSTM

office: 201-760-1100
84 E Ridgewood Ave, Suite 201
Ridgewood, NJ 07450
201-760-1100 (office)
201-760-1102 (fax)

Contact Info

FOR APPOINTMENTS CONTACT


Sales Associate
201-982-0358 (cell)

Madisom Adams Sales Associate Yuriy Zatuchny


Sales Associate
201-725-1170 (cell)

Madisom Adams Sales Associate Juan Carlos Guevara


Sales Associate
917-863-6560 (cell)

Madisom Adams Sales Associate Cindy Chiashin Shih


Real estate inventory
Weehawken
Homes : $925,000 - 2,000,000 5
Condos : $275,000 - 6,500,000 31
Co-ops : $259,000 - 439,000 3
Twnhs : -
2-4 Fam : $839,000 - 2,950,000 8
5+ Fam : -
Land : $365,000 - 2,250,000 6
Rentals : $2,200 - 10,500 14
Mixd Use : -
Com S : -
Com L : -
Biz : -


Similar Listings in Weehawken

The data relating to the real estate for sale on this web site comes in part from the Internet Data Exchange Program of the NJMLS. Real estate listings held by brokerage firms other than Madison Adams are marked with the Internet Data Exchange logo and information about them includes the name of the listing brokers. Some properties listed with the participating brokers do not appear on this website at the request of the seller. Listings of brokers that do not participate in Internet Data Exchange do not appear on this website.
NJMLS is the owner of the copyrights of the listing content displayed for IDX. The NJMLS Internet Data Exchange Logo is a service mark owned by the NJMLS, Inc. All information deemed reliable but not guaranteed. Last date updated: 01/13/2026 00:05 AM Source: New Jersey Multiple Listing Service, Inc. “©2026 New Jersey Multiple Listing Service, Inc. All rights reserved.”


General Tax Rate is used to determine the amount of real estate tax levied upon a particular property. This rate is used to compute the tax bill.

Effective Tax Rate is used to compare of one district to another district based on the assumption that all districts are at 100% valuation. This rate has been computed by the State of New Jersey Department of the Treasury using County Equalization Average Ratios. This rate is NOT to be used to compute the tax bill.

Data Source: US Census 2010, NJ MLS, State of New Jersey Department of the Treasury

(A) Start Address :
(B) End Address : Get Directions

Need More Info

First Name:
Last Name:
E-mail:
Tel:--
Message:
Join Madison Adams
Market Reports



Contact Us

Please read the Consumer Information Statement (CIS)


  

Madison AdamsTM

84 E Ridgewood Ave, Suite 201
Ridgewood, NJ 07450
201 760-1100 (office)
201 760-1102 (fax)
office@madisonadams.com