Commercial space For Lease in Passaic, NJ
 

MLS# : 25039951

Street : 109-111 Lexington Avenue
Price : $799,000
Town : Passaic, NJ 07055
Annual Taxes : $0
General Tax Rate (2026) : 0%

PROPERTY DETAILS

Use : Office
Utilities : Sep Elec, Sep Gas
Heat/Cool : Central Air, Gas, Hot Air
Waterfront : None

PROPERTY DESCRIPTION

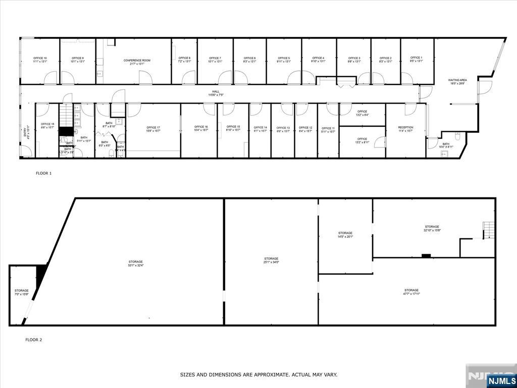
A prime investment opportunity! 111 Lexington is a 5,100 sq. ft. brick office building with versatile OR zoning, allowing for residential, retail, office, banking, dining, and more. Includes a basement with a storage room and will be delivered vacant. Being sold together with 98 Lexington (see listing) , a 13-spot parking lot conveniently located across the street. Don't miss this adaptable space in a great location!

Amenities

This listing is a courtesy of Dwell Realty NJ
973-542-8333 office, listing agent Miriam D. Lebovits

MADISON ADAMSTM

office: 201-760-1100
84 E Ridgewood Ave, Suite 201
Ridgewood, NJ 07450
201-760-1100 (office)
201-760-1102 (fax)

Contact Info

FOR APPOINTMENTS CONTACT


Sales Associate
917-863-6560 (cell)

Madisom Adams Sales Associate Cindy Chiashin Shih


Managing Partner
Broker Associate
646-279-8233 (cell)

Madisom Adams Broker Associate Helena Lobo-Zagorski


Sales Associate
914-261-6031 (cell)

Madisom Adams Sales Associate Georgine Addeo


Real estate inventory
Passaic
Homes : $375,000 - 1,400,000 5
Condos : $365,000 - 365,000 1
Co-ops : $1,500 - 1,500 1
Twnhs : $569,000 - 569,000 1
2-4 Fam : $595,000 - 1,599,999 6
5+ Fam : $1,599,000 - 1,599,000 1
Land : -
Rentals : $1,450 - 4,000 29
Mixd Use : $1,599,000 - 1,599,000 1
Com S : -
Com L : -
Biz : $159,900 - 159,900 1


Similar Listings in Passaic

The data relating to the real estate for sale on this web site comes in part from the Internet Data Exchange Program of the NJMLS. Real estate listings held by brokerage firms other than Madison Adams are marked with the Internet Data Exchange logo and information about them includes the name of the listing brokers. Some properties listed with the participating brokers do not appear on this website at the request of the seller. Listings of brokers that do not participate in Internet Data Exchange do not appear on this website.
NJMLS is the owner of the copyrights of the listing content displayed for IDX. The NJMLS Internet Data Exchange Logo is a service mark owned by the NJMLS, Inc. All information deemed reliable but not guaranteed. Last date updated: 02/21/2026 00:05 AM Source: New Jersey Multiple Listing Service, Inc. “©2026 New Jersey Multiple Listing Service, Inc. All rights reserved.”


General Tax Rate is used to determine the amount of real estate tax levied upon a particular property. This rate is used to compute the tax bill.

Effective Tax Rate is used to compare of one district to another district based on the assumption that all districts are at 100% valuation. This rate has been computed by the State of New Jersey Department of the Treasury using County Equalization Average Ratios. This rate is NOT to be used to compute the tax bill.

Data Source: US Census 2010, NJ MLS, State of New Jersey Department of the Treasury

(A) Start Address :
(B) End Address : Get Directions

Need More Info

First Name:
Last Name:
E-mail:
Tel:--
Message:
Join Madison Adams
Market Reports



Contact Us

Please read the Consumer Information Statement (CIS)


  

Madison AdamsTM

84 E Ridgewood Ave, Suite 201
Ridgewood, NJ 07450
201 760-1100 (office)
201 760-1102 (fax)
office@madisonadams.com