2-4 Family Home For Sale in Guttenberg, NJ
 

MLS# : 250022850

Street : 7017 ADAMS ST
Price : $620,000
Town : Guttenberg, NJ 07093
Annual Taxes : $9,386

PROPERTY DETAILS

# of Rooms :
Bedrooms :
Full Baths :
Half Baths :
Basement : Walk-Out
Year Built :
Lot Size :
Style : Other-See Remarks
Exterior Finish : Aluminum/Vinyl
Exterior : Aluminum/Vinyl
Heat/Cool : A/C Window, Radiators

PROPERTY DESCRIPTION

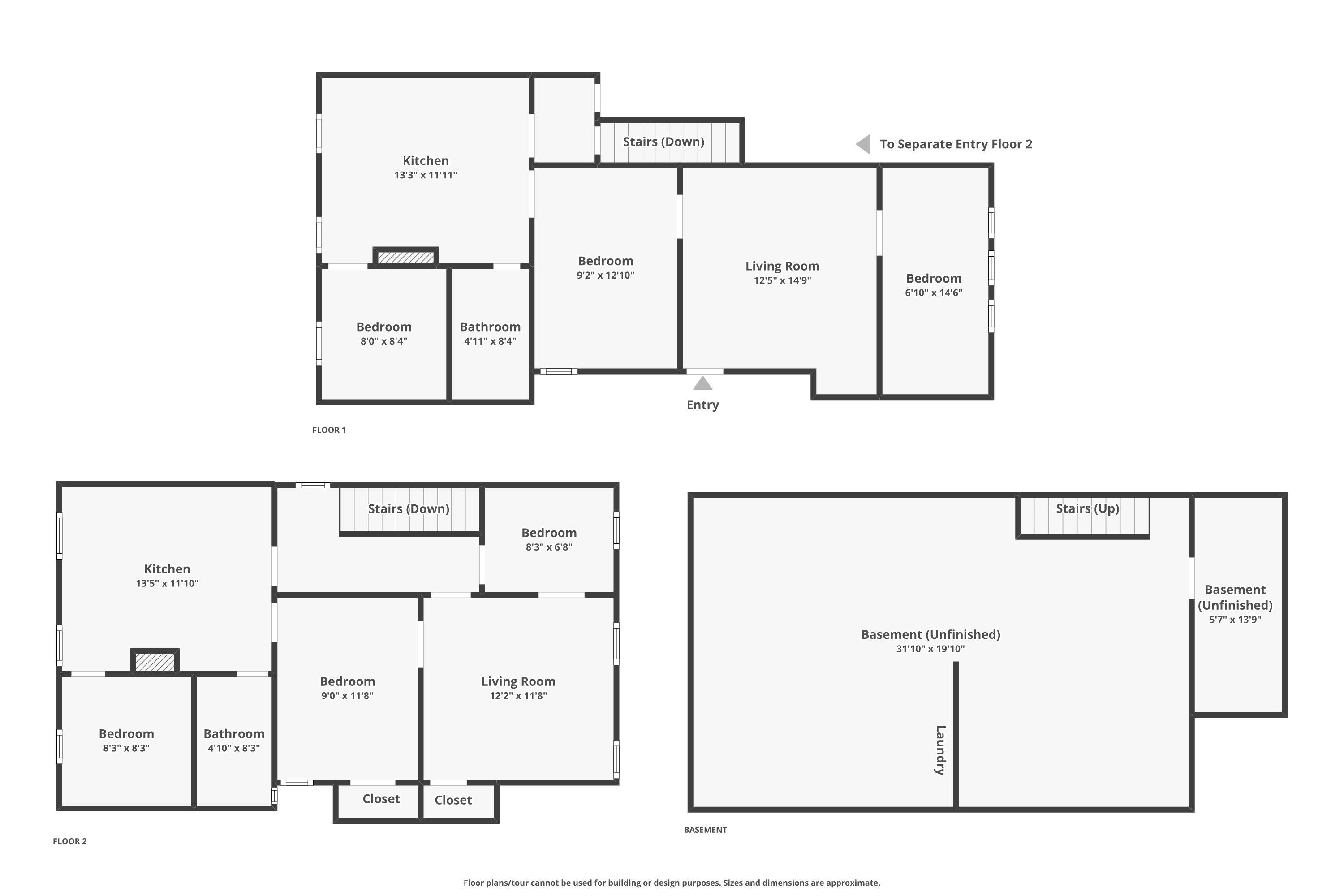
Welcome to 7017 Adams Street — a versatile two-family home in the heart of Guttenberg, bordering North Bergen, offering endless potential and solid income opportunity. This well-kept property features two spacious units, each with three bedrooms and one full bath, ideal for owner-occupants or investors alike. Original hardwood floors lie beneath the carpeting, ready to be revealed and restored. Bring your vision and make this home shine — whether you’re updating for personal use or maximizing rental income. Enjoy a private yard with an above-ground pool, perfect for relaxing or entertaining. Situated on a quiet residential block just minutes from NYC transportation, schools, parks, and local dining, this home earns a High Walk Score for its convenience. A smart investment in one of Hudson County’s most desirable and close-knit communities. Home is currently owner-occupied. Basement being used for storage and walkout to yard - plumbing is available. OPEN HOUSE SATURDAY NOVEMBER 8 - 1PM TO 2PM

Amenities

This listing is a courtesy of KELLER WILLIAMS VILLAGE SQUARE REALTY
201-445-4300 office, listing agent THERESA BROWN

About Guttenberg, NJ Real Estate Market

The ninth-smallest municipality in New Jersey, Guttenberg is a small town present in the north of Hudson County in New Jersey. Covering an area of 0.24 square miles, Guttenberg boasts a population of around 11,500, with most of the people living in tall skyscrapers present in the town.

The establishment of Guttenberg as a town occurred in 1859, before which it was a farm owned by William Cooper. For the formation of the Guttenburg, some portions of North Bergen Township. Guttenberg became a fully independent town in 1878 while taking its name from Johannes Guttenberg, the inventor of the European version of the printing press.

Guttenberg is surrounded by Hudson Palisades in the south, Woodcliff and North Bergen in the north, and shares its borders with the New York City borough of Manhattan across the Hudson River. This densely-populated town is four blocks wide, with around 20 per cent of people living in Galaxy Towers, the most famous residential area of Guttenberg. Overlooking the Hudson River, it is one of the finest examples of Hudson County real estate. Developed by Prudential Insurance Company, Galaxy Towers is a crucial part of New Jersey real estate and is located on Boulevard East. The three skyscrapers of Galaxy Towers have 1,075 apartments.
Population:  11,176
Total Housing Units:  4,839
Single Family Homes:  484
Apartments:  4,355
General Tax Rate (2023):  3.993%
Effective Tax Rate (2023):  2.329%
Compare To Other Towns

Guttenberg Market Indicators

PRICE INDEX

Average Price* (12mo):  $475,283
Homes Sold* (12mo):  4
PRICE INDEX
SINGLE FAMILY HOME SALES

Guttenberg, NJ
12 Month Moving Average


1 YR 2 YR 3 YR 5 YR 7 YR MAX
 

Download Full Home Sales Report

PRICE INDEX

Average Price* (12mo):  $345,896
Apatments Sold* (12mo):  62
PRICE INDEX
APARTMENT SALES

Guttenberg, NJ
12 Month Moving Average


1 YR 2 YR 3 YR 5 YR 7 YR MAX

 

Download Full Apartment Sales Report

REAL ESTATE TAXES

General Tax Rate (2023):  3.993%
Effective Tax Rate (2023):  2.329%
GENRAL TAX RATE - Guttenberg, NJ



MADISON ADAMSTM

office: 201-760-1100
84 E Ridgewood Ave, Suite 201
Ridgewood, NJ 07450
201-760-1100 (office)
201-760-1102 (fax)

Contact Info

FOR APPOINTMENTS CONTACT


Sales Associate
914-261-6031 (cell)

Madisom Adams Sales Associate Georgine Addeo


Sales Associate
917-863-6560 (cell)

Madisom Adams Sales Associate Cindy Chiashin Shih


Sales Associate
201-982-0358 (cell)

Madisom Adams Sales Associate Yuriy Zatuchny


Real estate inventory
Guttenberg
Homes : -
Condos : $231,000 - 1,100,000 56
Co-ops : $168,000 - 349,999 4
Twnhs : -
2-4 Fam : $620,000 - 800,000 2
5+ Fam : -
Land : -
Rentals : $1,950 - 7,500 15
Mixd Use : -
Com S : -
Com L : -
Biz : $60,000 - 60,000 1


Similar Listings in Guttenberg

The data relating to the real estate for sale on this web site comes in part from the Internet Data Exchange Program of the NJMLS. Real estate listings held by brokerage firms other than Madison Adams are marked with the Internet Data Exchange logo and information about them includes the name of the listing brokers. Some properties listed with the participating brokers do not appear on this website at the request of the seller. Listings of brokers that do not participate in Internet Data Exchange do not appear on this website.
NJMLS is the owner of the copyrights of the listing content displayed for IDX. The NJMLS Internet Data Exchange Logo is a service mark owned by the NJMLS, Inc. All information deemed reliable but not guaranteed. Last date updated: 11/07/2025 00:05 AM Source: New Jersey Multiple Listing Service, Inc. “©2025 New Jersey Multiple Listing Service, Inc. All rights reserved.”


General Tax Rate is used to determine the amount of real estate tax levied upon a particular property. This rate is used to compute the tax bill.

Effective Tax Rate is used to compare of one district to another district based on the assumption that all districts are at 100% valuation. This rate has been computed by the State of New Jersey Department of the Treasury using County Equalization Average Ratios. This rate is NOT to be used to compute the tax bill.

Data Source: US Census 2010, NJ MLS, State of New Jersey Department of the Treasury

(A) Start Address :
(B) End Address : Get Directions

Need More Info

First Name:
Last Name:
E-mail:
Tel:--
Message:
Join Madison Adams
Market Reports



Contact Us

Please read the Consumer Information Statement (CIS)


  

Madison AdamsTM

84 E Ridgewood Ave, Suite 201
Ridgewood, NJ 07450
201 760-1100 (office)
201 760-1102 (fax)
office@madisonadams.com