Single Family Home For Sale in Ringwood, NJ

MLS# : 25040120

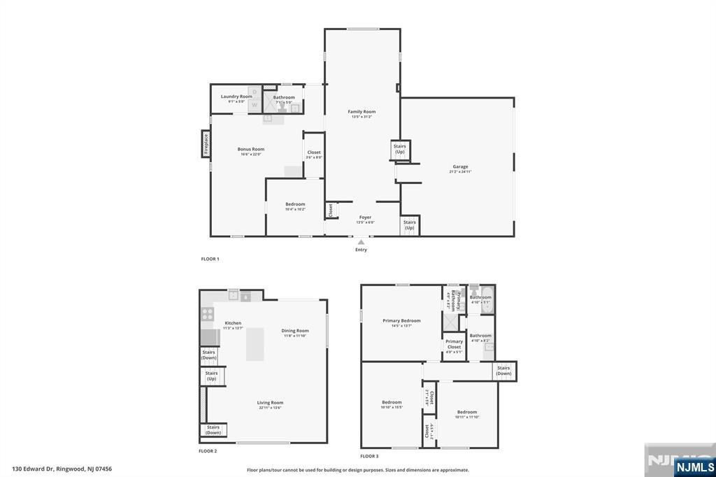
Street : 130 Edward Drive
Price : $749,000
Town : Ringwood, NJ 07456
Annual Taxes : $15,244

PROPERTY DETAILS

# of Rooms : 11
Bedrooms : 4
Full Baths : 3
Half Baths : 0
Basement : Finished
Garage : Attached
Year Built : 1970's
Lot Size : Regular
Style : Split Level
Exterior : Brick, Vinyl
Heat/Cool : Baseboard, Gas, Hot Water

PROPERTY DESCRIPTION

Welcome home to this inviting 4-bedroom, 3-bathroom Split-Level tucked away on a beautifully landscaped, wooded lot in the heart of scenic Ringwood. Surrounded by nature, this home offers the perfect balance of privacy, comfort, and community, ideal for those seeking a lifestyle with access to lakes, parks, and hiking trails. Step through the welcoming entry vestibule into the cozy family room, an ideal space for movie nights or quiet relaxation. Beyond the family room, the spacious den, currently used as a home office and playroom features skylights and a fireplace. A ground-floor bedroom, full bathroom, laundry area, and direct garage access complete the lower level. Upstairs, the sun-filled living room invites relaxation with its large windows and serene wooded views. The open layout flows into the elegant dining area, perfect for gatherings with family and friends. The updated kitchen is both stylish and functional, showcasing granite countertops, custom cabinetry, center island, and pantry. Sliding glass doors open to a large deck that extends your living space, overlooking the peaceful, tree-lined yard. The upper level includes a generous primary suite with a walk-in closet and private bath, two additional bedrooms, and a full hall bathroom. Outdoors, enjoy a true Ringwood retreat complete with a deck for summer dining, a patio for entertaining, and an above-ground pool with built-in decking. A two-car garage and ample parking complete this exceptional property.

Amenities

Life Style :

Close/Parks, Close/School, Close/Shopg, Close/Trans

This listing is a courtesy of Howard Hanna Rand Realty
973-694-6500 office, listing agent Anthony J. Jordan

MADISON ADAMSTM

office: 201-760-1100
84 E Ridgewood Ave, Suite 201
Ridgewood, NJ 07450
201-760-1100 (office)
201-760-1102 (fax)

Contact Info

FOR APPOINTMENTS CONTACT


Sales Associate
201-724-6913 (cell)

Madisom Adams Sales Associate Carmela Maggio


Sales Associate
914-261-6031 (cell)

Madisom Adams Sales Associate Georgine Addeo


Sales Associate
551-358-4252 (cell)

Madisom Adams Sales Associate Henry A. Washington


Real estate inventory
Ringwood
Homes : $339,000 - 999,997 14
Condos : -
Co-ops : -
Twnhs : -
2-4 Fam : -
5+ Fam : -
Land : $69,900 - 69,900 1
Rentals : $2,300 - 4,120 3
Mixd Use : -
Com S : -
Com L : -
Biz : -


Similar Listings in Ringwood

The data relating to the real estate for sale on this web site comes in part from the Internet Data Exchange Program of the NJMLS. Real estate listings held by brokerage firms other than Madison Adams are marked with the Internet Data Exchange logo and information about them includes the name of the listing brokers. Some properties listed with the participating brokers do not appear on this website at the request of the seller. Listings of brokers that do not participate in Internet Data Exchange do not appear on this website.
NJMLS is the owner of the copyrights of the listing content displayed for IDX. The NJMLS Internet Data Exchange Logo is a service mark owned by the NJMLS, Inc. All information deemed reliable but not guaranteed. Last date updated: 11/12/2025 00:05 AM Source: New Jersey Multiple Listing Service, Inc. “©2025 New Jersey Multiple Listing Service, Inc. All rights reserved.”


General Tax Rate is used to determine the amount of real estate tax levied upon a particular property. This rate is used to compute the tax bill.

Effective Tax Rate is used to compare of one district to another district based on the assumption that all districts are at 100% valuation. This rate has been computed by the State of New Jersey Department of the Treasury using County Equalization Average Ratios. This rate is NOT to be used to compute the tax bill.

Data Source: US Census 2010, NJ MLS, State of New Jersey Department of the Treasury

(A) Start Address :
(B) End Address : Get Directions

Need More Info

First Name:
Last Name:
E-mail:
Tel:--
Message:
Join Madison Adams
Market Reports



Contact Us

Please read the Consumer Information Statement (CIS)


  

Madison AdamsTM

84 E Ridgewood Ave, Suite 201
Ridgewood, NJ 07450
201 760-1100 (office)
201 760-1102 (fax)
office@madisonadams.com